1 / 38
320 dager siden
Solgt
Bislett/Bolteløkka
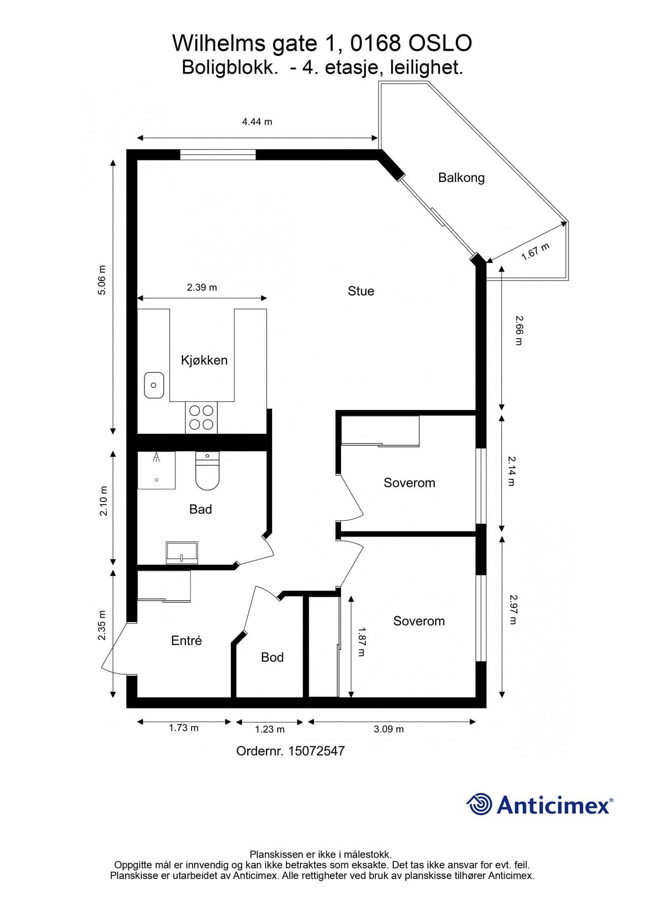
Wilhelms Gate 1, 0168 Oslo
Totalpris
7 498 288 kr
109 167 kr per m²
Prisantydning
7 260 000 kr
Felleskost/mnd
3 585 kr
Internt bruksareal
67 m² BRA-i
Soverom
2
Etasje
4.
Risikoer
Høydepunkter
Betaler du for mye i rente?
Oppdatert boligverdi kan gi lavere rente. Få tilbud fra opptil 3 meglere.
Meglere kan ta vederlag for verdivurdering hvis du ikke planlegger å selge.
Risikovurdering
Basert på AI-analyse av boligens salgsoppgave
1. Skader på bad
Det er registrert skader som "riss/sprekker i gulvfliser ved dør og dusjsone" som må utbedres.
🛠️Byggteknisk
Spør megler
“Hva vil det koste å utbedre skadene på badet?”
2. Eldgamle rør
Det mangler vannlås til servant, og det er rapportert om "tettesjikt og vannrør pga alder".
🚰Vvs
Spør megler
“Hvilke tiltak er nødvendig for å oppdatere røranlegget?”
3. Krever vedlikehold av balkong
Overflatebehandlingen på terrassebord er slitt, og rekkverkshøyden er under 1,2 meter, noe som er avvik fra byggteknisk forskrift.
🌿Uteplass
Spør megler
“Når er det planlagt å oppgradere balkongen for å etterkomme byggteknisk forskrift?”
4. Ugjennomført el-tillsyn
Det er ikke utført el-tilsyn/utvidet el-kontroll på boligen de siste fem årene, og tilstandsrapporten anbefaler kontroll.
⚡Elektrisk anlegg
Spør megler
“Hvilke kostnader kan påløpe ved en eventuell oppgradering av det elektriske anlegget?”
5. Felleskostnader kan øke
Det er mulig at felleskostnadene kan stige pga. "renteøkning, vedlikeholdsarbeid eller andre tiltak som iverksettes av boligselskapet".
💰Felleskostnader
Spør megler
“Finnes det planer for tiltak som kan medføre en økning i felleskostnadene?”
Vurderer du å selge boligen din?
Få gratis og uforpliktende tilbud fra opptil 3 lokale eiendomsmeglere.





