1 / 46
228 dager siden
Solgt
St. Hanshaugen
Ullevålsveien 7, 0165 Oslo
Totalpris
5 975 607 kr
94 009 kr per m²
Prisantydning
5 650 000 kr
Felleskost/mnd
4 421 kr
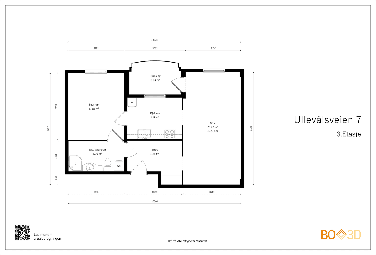
Internt bruksareal
62 m² BRA-i
Soverom
1
Etasje
3.
Risikoer
Høydepunkter
Betaler du for mye i rente?
Oppdatert boligverdi kan gi lavere rente. Få tilbud fra opptil 3 meglere.
Meglere kan ta vederlag for verdivurdering hvis du ikke planlegger å selge.
Risikovurdering
Basert på AI-analyse av boligens salgsoppgave
1. Potensielle fuktskader på bad
Ved tilstandsrapporten oppgis det at "sluk har begrenset mulighet for inspeksjon og rengjøring". Det anbefales oppgradering av rommets tettesjikt/membran for å unngå lekkasjer.
💧Byggteknisk
Spør megler
“Hvordan kan jeg overvåke tilstanden til sluk og membran i badet, og hva vil det koste å oppgradere disse om nødvendig?”
2. Elektroanleggets tilstand
Det opplyses at "tilstandsgrad 2" gis fordi "det foreligger ikke samsvarserklæringer/dokumentasjon for anlegget/deler av det innvendige elektriske anlegget".
⚡Elektrisk
Spør megler
“Er det mulig å få en fullstendig elektrisk kontroll av anlegget før jeg eventuelt kjøper boligen?”
3. Eldre rør fra 1991
Innvendige vannledninger er av kobberrør fra byggeår 1991, og "mer enn halvparten av forventet brukstid er passert".
🚿Vvs
Spør megler
“Er det sannsynlig at det vil oppstå problemer med vannledninger i nær fremtid, og hvilke kostnader kan være forbundet med en eventuell utskifting?”
4. Våtrom med TG2 og TG3
Det er rapportert om "TG3" for sluk, membran og tettesjikt; at det er synlig rust i sluk, og anbefaling om å undersøke sluk ytterligere.
🚧Byggteknisk
Spør megler
“Hvilke umiddelbare tiltak bør gjøres for å unngå forverring av tilstanden på våtrommet?”
5. Usikret brannalarm
Rapporten angir at det er ukjent om det finnes brannalarmanlegg som oppfyller dagens krav, og derfor anbefales den tilstandsvurdering.
🔥Sikkerhet
Spør megler
“Finnes det dokumentasjon på brannalarmsystemet og har det vært noen oppgraderinger siden boligen ble bygget?”
6. Fremtidig vedlikehold kreves
Det er opplyst om behov for flere små og større vedlikeholdsprosjekter fremover, ettersom bygget har rundet 30 år.
🛠️Vedlikehold
Spør megler
“Hvilke konkrete vedlikeholdsprosjekter planlegges, og hva vil potensielle kostnader kunne bli?”
Vurderer du å selge boligen din?
Få gratis og uforpliktende tilbud fra opptil 3 lokale eiendomsmeglere.





