1 / 26
237 dager siden
Solgt
St. Hanshaugen/Meyerløkka
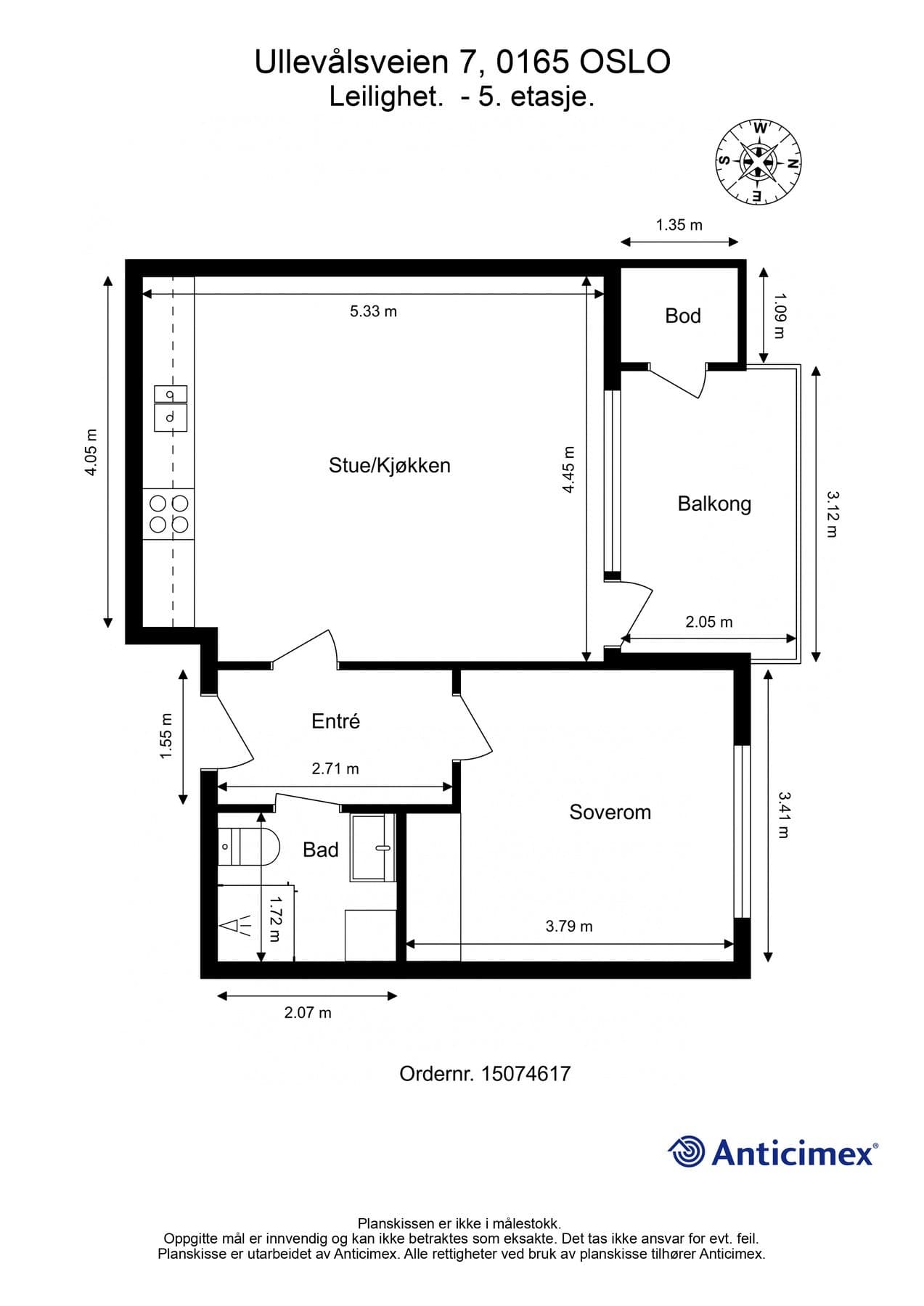
Ullevålsveien 7, 0165 Oslo
Totalpris
5 525 230 kr
119 546 kr per m²
Prisantydning
5 250 000 kr
Felleskost/mnd
3 263 kr
Internt bruksareal
45 m² BRA-i
Soverom
1
Etasje
5.
Risikoer
Høydepunkter
Betaler du for mye i rente?
Oppdatert boligverdi kan gi lavere rente. Få tilbud fra opptil 3 meglere.
Meglere kan ta vederlag for verdivurdering hvis du ikke planlegger å selge.
Risikovurdering
Basert på AI-analyse av boligens salgsoppgave
1. Alder på vannrør
Det er rapportert at 'vannrør i våtrom er vurdert til å ha en alder som tilsier at anbefalt brukstid er redusert'.
⚠️Byggteknisk
Spør megler
“Hva vil det koste å bytte ut vannrørene i våtrom?”
2. Kostnad ved oppgradering av fliser
Tiltaksrapporten indikerer at 'elastiske flisfuger har stedvis manglende vedheft, og fuger bør fornyes'.
🧱Tilstand
Spør megler
“Hva vil det koste å fornye fugene i badet?”
3. Mangel på automatisk lekkasjestopper
Det er ikke montert automatisk lekkasjestopper for å begrense 'eventuelle lekkasjer fra vanninstallasjoner'.
💧Vvs
Spør megler
“Hvor mye koster det å installere en automatisk lekkasjestopper?”
4. Skjevhet i etasjeskiller
Det er rapportert om skjevheter i boligen, med 'forskjellen mellom høyeste og laveste punkt på 2,0 meter målt til 12 mm i stue/kjøkken'.
📏Byggteknisk
Spør megler
“Hvilke konsekvenser kan skjevheten ha på boligens verdiskapning?”
5. Usikkerhet om restlevetid for membran
Membranen har en alder som tilsier at 'restlevetiden er usikker', ifølge tilstandsrapporten.
🔍Bad
Spør megler
“Hva er estimert kostnad for å skifte membran dersom det skulle bli nødvendig?”
6. Energimerking
Leiligheten har energimerke Rød D, noe som indikerer at energibruken er over det som anses som optimalt.
🔋Energiforbruk
Spør megler
“Er det vurdert tiltak for å forbedre energikarakteren?”
Vurderer du å selge boligen din?
Få gratis og uforpliktende tilbud fra opptil 3 lokale eiendomsmeglere.





