1 / 45
330 dager siden
Solgt
Holtet/Nordstrand
Steinhammerveien 10F, 1177 Oslo
Totalpris
8 191 100 kr
70 088 kr per m²
Prisantydning
7 990 000 kr
Internt bruksareal
114 m² BRA-i
Soverom
3
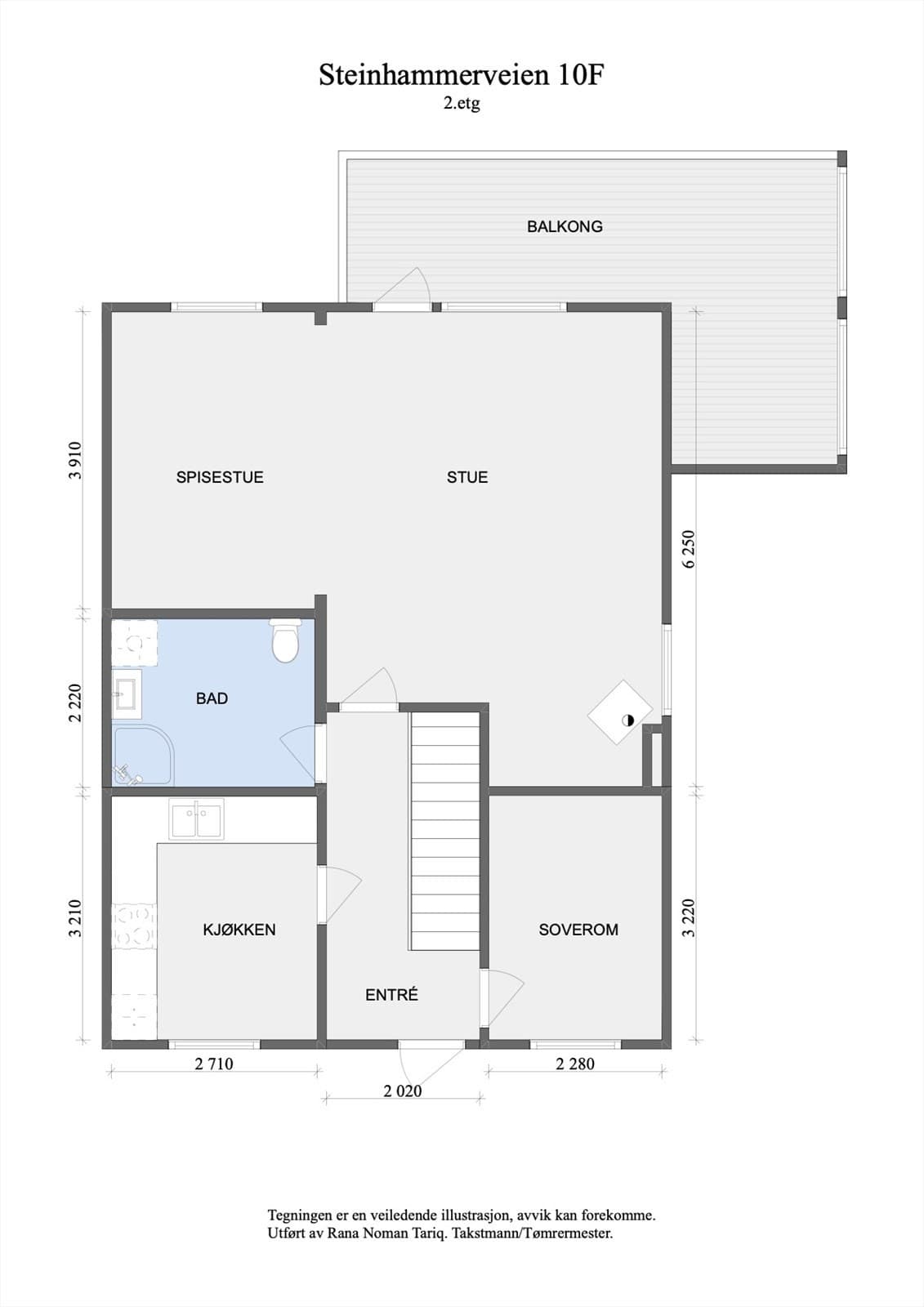
Etasje
2.
Risikoer
Høydepunkter
Betaler du for mye i rente?
Oppdatert boligverdi kan gi lavere rente. Få tilbud fra opptil 3 meglere.
Meglere kan ta vederlag for verdivurdering hvis du ikke planlegger å selge.
Risikovurdering
Basert på AI-analyse av boligens salgsoppgave
1. Uten godkjent tak over terrasse
Ifølge salgsoppgaven er det opplyst om at "taket som er bygget over terrassen ikke blitt godkjent hos Plan & Bygg". Dette kan medføre pålegg om riving.
🏗️Byggteknisk
Spør megler
“Hva vil konsekvensene bli hvis kommunen får kjennskap til at taket ikke er godkjent?”
2. Kostnader ved oppgradering av bad
Baderommene har fått TG3 med kostnadsestimat for utbedringer mellom 100 000 ‑ 300 000, ifølge tilstandsrapporten.
🚿Våtrom
Spør megler
“Hvilke spesifikke tiltak anbefales for å oppgradere badene, og hva vil dette koste?”
3. Manglende funksjonelt peis
Det er opplyst at peisovnen ikke er funksjonstestet på en stund og mangler gnistfanger. Dette kan medføre sikkerhetsrisiko.
🔥Brannvern
Spør megler
“Hva må gjøres for å bringe peisovnen i sikker arbeidsstand?”
4. Gjeldsrente på sameiets lån
Sameiet har et gjeldsbrevslån med en rente på 8,55 % p.a. som kan påvirke felleskostnadene.
📉Økonomi
Spør megler
“Hva skjer hvis renten skulle øke, og hvordan påvirker dette felleskostnadene?”
5. Forutsetninger for utleie
Det er ikke kjent om det foreligger offentligrettslige regler som kan hindre utleie av hele eiendommen.
🏠Utleie
Spør megler
“Hvilke begrensninger kan det være knyttet til utleie av boligen?”
6. Energiattest med karakter F
Boligen har en energikarakter F, som indikerer dårlig energieffektivitet, noe som kan medføre høye energikostnader.
⚡Energikostnader
Spør megler
“Er det planlagt tiltak for å forbedre energiklassifiseringen, og hva vil det koste?”
Vurderer du å selge boligen din?
Få gratis og uforpliktende tilbud fra opptil 3 lokale eiendomsmeglere.





