1 / 27
329 dager siden
Solgt
Lørenskog
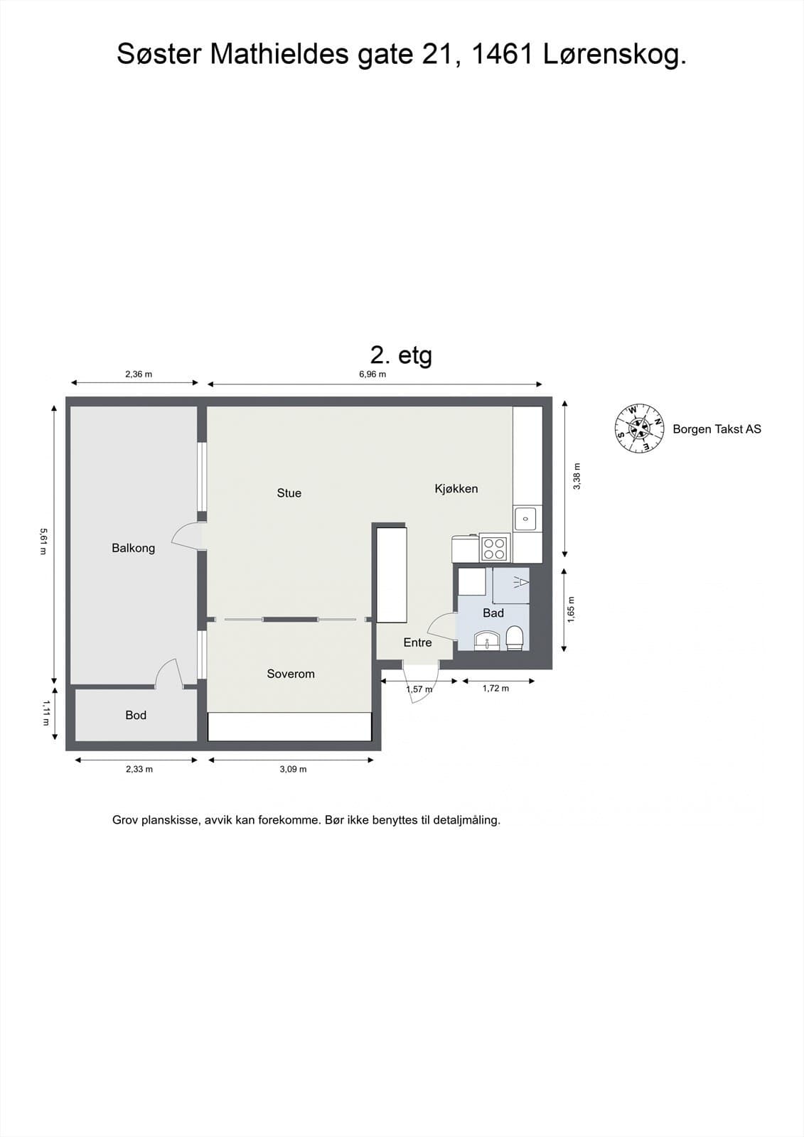
Søster Mathildes Gate 21, 1461 Lørenskog
Totalpris
3 481 382 kr
80 792 kr per m²
Prisantydning
2 600 000 kr
Felleskost/mnd
10 771 kr
Internt bruksareal
43 m² BRA-i
Soverom
1
Etasje
2.
Risikoer
Høydepunkter
Betaler du for mye i rente?
Oppdatert boligverdi kan gi lavere rente. Få tilbud fra opptil 3 meglere.
Meglere kan ta vederlag for verdivurdering hvis du ikke planlegger å selge.
Risikovurdering
Basert på AI-analyse av boligens salgsoppgave
1. Bad med tilstandsgrad 3 (TG3)
Tilstandsrapporten viser at det er sprekkdannelser i fliser og at det er mangler ved fall rundt slukristen. Dette kan medføre behov for utbedringer.
🔧Byggteknisk
Spør megler
“Hva vil det anslagsvis koste å fikse sprekkene og de eventuelle fallproblemene i badet?”
2. Justering av vindu
Tilstandsrapporten indikerer at vinduene ønsker justering og at det er en løs vrider på balkongdør.
🔧Byggteknisk
Spør megler
“Hvilke tiltak må gjøres for å justere vinduene, og hva vil det koste?”
3. Ventilasjon på bad
Det er rapportert om manglende ventilasjonsspalte i baderomsdør, samt problem med luftespjeld i stue.
💨Ventilasjon
Spør megler
“Hvordan planlegger borettslaget å håndtere ventilasjonsproblemene som er nevnt?”
4. Støy og luktproblemer
Det har blitt rapportert om tilfeller av høy musikk og mat-/sigarettlukt fra naboer, men det blir sagt at dette ikke er et vanlig problem.
🔊Nabolag
Spør megler
“Er det aktive tiltak fra borettslaget for å håndtere støy og lukt fra naboer?”
5. Skadedyrobservasjoner
Det har vært observasjoner av skjeggkre i borettslaget, og det ble nevnt at styret tidligere har håndtert problemet, men muligheten for gjentagelse finnes.
🐜Skadedyr
Spør megler
“Hva slags tiltak har borettslaget vurdert for å håndtere problematikken med skjeggkre?”
6. Støy fra kjøkkenventilator
Det rapporteres om støy og vibrasjoner fra kjøkkenventilatoren, som bør byttes på sikt.
🔊Oppvarming/ventilasjon
Spør megler
“Hva anslår styret at kostnaden vil være for å bytte ventilatoren?”
Vurderer du å selge boligen din?
Få gratis og uforpliktende tilbud fra opptil 3 lokale eiendomsmeglere.





