1 / 31
386 dager siden
Solgt
Idyll Rett V/ Kampen Park
Sons Gate 5C, 0654 Oslo
Totalpris
6 383 948 kr
127 395 kr per m²
Prisantydning
6 000 000 kr
Felleskost/mnd
6 574 kr
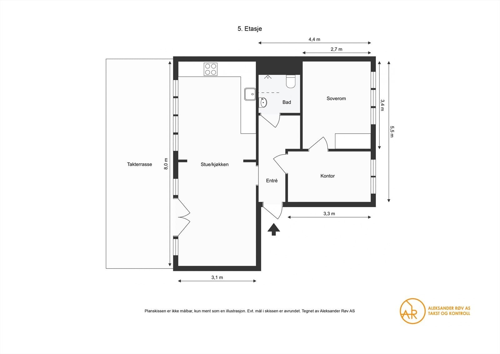
Internt bruksareal
50 m² BRA-i
Soverom
2
Etasje
5.
Risikoer
Høydepunkter
Betaler du for mye i rente?
Oppdatert boligverdi kan gi lavere rente. Få tilbud fra opptil 3 meglere.
Meglere kan ta vederlag for verdivurdering hvis du ikke planlegger å selge.
Risikovurdering
Basert på AI-analyse av boligens salgsoppgave
1. Eldre vinduer
Det er avvik på vinduene, som "bærer preg av elde og har stive tetningspakninger". Det må forventes vedlikeholdsarbeid.
🪟Byggteknisk
Spør megler
“Hva vil det koste å bytte ut eller utbedre vinduene?”
2. Terrassedørens tilstand
Terrassedøren "bærer preg av elde og slitasje", og tetningspakningene anbefales byttet for å unngå luftlekkasjer.
🚪Byggteknisk
Spør megler
“Har det vært noen lekkasjer gjennom terrassedøren, og hva kan være kostnadene for utbedring?”
3. Ventilasjon
Boligen har ikke oppdatert ventilasjon etter at kjøkkenet ble flyttet, som kan "gi redusert luftsirkulasjon".
💨Ventilasjon
Spør megler
“Hvilke tiltak vurderer styret for å oppdatere ventilasjonen, og hva vil kostnadene være?”
4. Kostnader til felleskostnader
Felleskostnadene er relativt høye på 6574 kr per måned, noe som kan påvirke den månedlige budsjettplanleggingen.
💰Felleskostnader
Spør megler
“Hvilke tjenester inngår i de månedlige felleskostnadene? Finnes det planlagte økninger?”
5. Mulige fuktskader i bad
Det er påvist krakkeleringer i flisene ved dusjsonen, samt "utsagn for fukt" på overflaten.
🌧️Fukt
Spør megler
“Hva er tilstanden bak flisene, og har det blitt vurdert utbedring for fuktproblemene?”
6. Tekniske installasjoner
Det er avvik knyttet til vannledninger, som kan føre til oppfukting ved lekkasje, ifølge tilstandsrapporten.
🚰Vannledninger
Spør megler
“Hvilke tiltak må iverksettes for å sikre at vannledningssystemet er i tilstrekkelig stand?”
Vurderer du å selge boligen din?
Få gratis og uforpliktende tilbud fra opptil 3 lokale eiendomsmeglere.





