1 / 33
6 dager siden
Visning 26. apr kl 13:00
Sira Sigurds Gate 9, 1809 Askim
Totalpris
4 818 305 kr
23 383 kr per m²
Prisantydning
4 700 000 kr
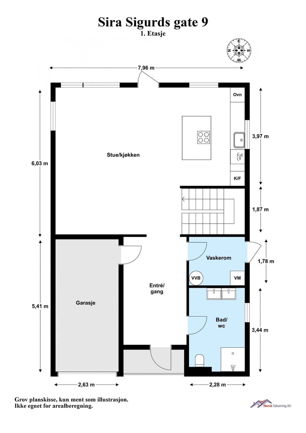
Internt bruksareal
201 m² BRA-i
Soverom
4
Etasje
3.
Risikoer
Høydepunkter
Tilstandsrapport
Visning
Søndag 26. april
13:00 – 13:45
Vurderer du å selge boligen din?
Få gratis og uforpliktende tilbud fra opptil 3 lokale eiendomsmeglere.
Risikovurdering
Basert på AI-analyse av boligens salgsoppgave
1. Lekkasjer ved takrenner
Det er påvist punktvise lekkasjer i takrennene, spesielt ved takterrasse/utebod på vestsiden. Lekkasjene har ført til fuktpåvirkning på yttervegg, terrassegulv og bodens spongulv. Lokal utbedring må utføres snarest for å unngå råteskader og kostbare følgeskader.
💧Byggteknisk
Spør megler
“Hva er estimert kostnad og tidsplan for utbedring av lekkasjene ved takrennene?”
2. Feil kledning og spikerbruk
Kledningen er delvis montert med feil type spiker (galvanisert i stedet for syrefast), med feil montert endepløying og sprukne panelbord. Hele kledningen anbefales byttet, med et estimat på ca. 670 000 kr inkl. mva. for utbedring.
🪵Byggteknisk
Spør megler
“Kan dere gi mer detaljer om tilstand og omfang av kledningsskadene, og hva vil det koste å skifte all kledning?”
3. Mangelfull takkonstruksjon-ventilasjon
Takkonstruksjonen har begrenset eller ingen lufting, og det er påvist skade i undertaksduken ved rørgjennomføring i uteboden. Dette gir økt fare for kondens, fuktskader og redusert levetid på taket. Kostnadsestimat ligger mellom 200 000 og 500 000 kr.
🏗️Byggteknisk
Spør megler
“Er det kjent hvilke tiltak som må gjøres for å sikre god ventilasjon i takkonstruksjonen og reparere undertaksduken?”
4. Manglende pipeløp
Boligen er oppført i 2020 og mangler pipeløp, som normalt kreves etter TEK17 for nye småhus med mindre det finnes vannbåren varme. Boligen har varmepumpe, men dette fritar ikke for kravet om pipe. Det må monteres pipeløp for å lukke avviket.
🔥Byggteknisk
Spør megler
“Hva vil det innebære i praktisk og økonomisk forstand å montere det nødvendige pipeløpet?”
5. Ufullstendig dokumentasjon på våtrom
Det foreligger mangelfull dokumentasjon på membran og tetting i badene og vaskerommet, med usikker utførelse av rørgjennomføringer og manglende mansjetter og deksler, noe som kan føre til fuktskader og lekkasjer.
🚿Våtrom
Spør megler
“Er det mulig å få tilgang til dokumentasjon eller rapporter på membran- og tettesjikt utførelse, og hva vil kostnadene være for eventuelle nødvendige utbedringer?”
6. Vannledningene har utførelsesavvik
Det er påvist ufagmessig utførelse av vannledninger med manglende isolasjon mot kulde, manglende tettemuffer i rør-i-rør-system og lekkasjevann som ikke ledes til sluk. Ikke montert vannmåler som skulle vært på plass innen 2022.
🚰Tekniske installasjoner
Spør megler
“Hva vil det koste å utbedre de påviste feilene ved vannledningsanlegget, og finnes det fagkyndig rapport?”
7. Ventilasjon på vaskerom er mangelfull
Vaskerommet har ingen ventilasjon utover mulighet for å åpne dører og mangler nødvendig tilluftsventilering som spalte eller ventil. Mekanisk avtrekk og tilluft må etableres.
🌬️Ventilasjon
Spør megler
“Hvilke løsninger for ventilasjon på vaskerommet kan anbefales og hva vil kostnadene være?”
8. Elektrisk anlegg mangler samsvarserklæring
Det elektriske anlegget fra 2020 har ikke samsvarserklæring, og det foreligger kun en forenklet kontroll uten full funksjonstest. Anlegget anbefales gjennomgått av autorisert eltakstmann ved overtakelse.
⚡Elektrisk anlegg
Spør megler
“Kan det fremskaffes dokumentasjon for elektroarbeidene, og hva er forventede kostnader for en fullstendig kontroll?”
Klar til å legge inn bud?
Skaff finansieringsbevis og vit hvor mye du kan by. Søk enkelt og digitalt.
Nom. rente 4,99%, eff. rente 5,15%. 3 mill o/25 år. Totalt 5 274 258 kr.





