1 / 24
379 dager siden
Solgt
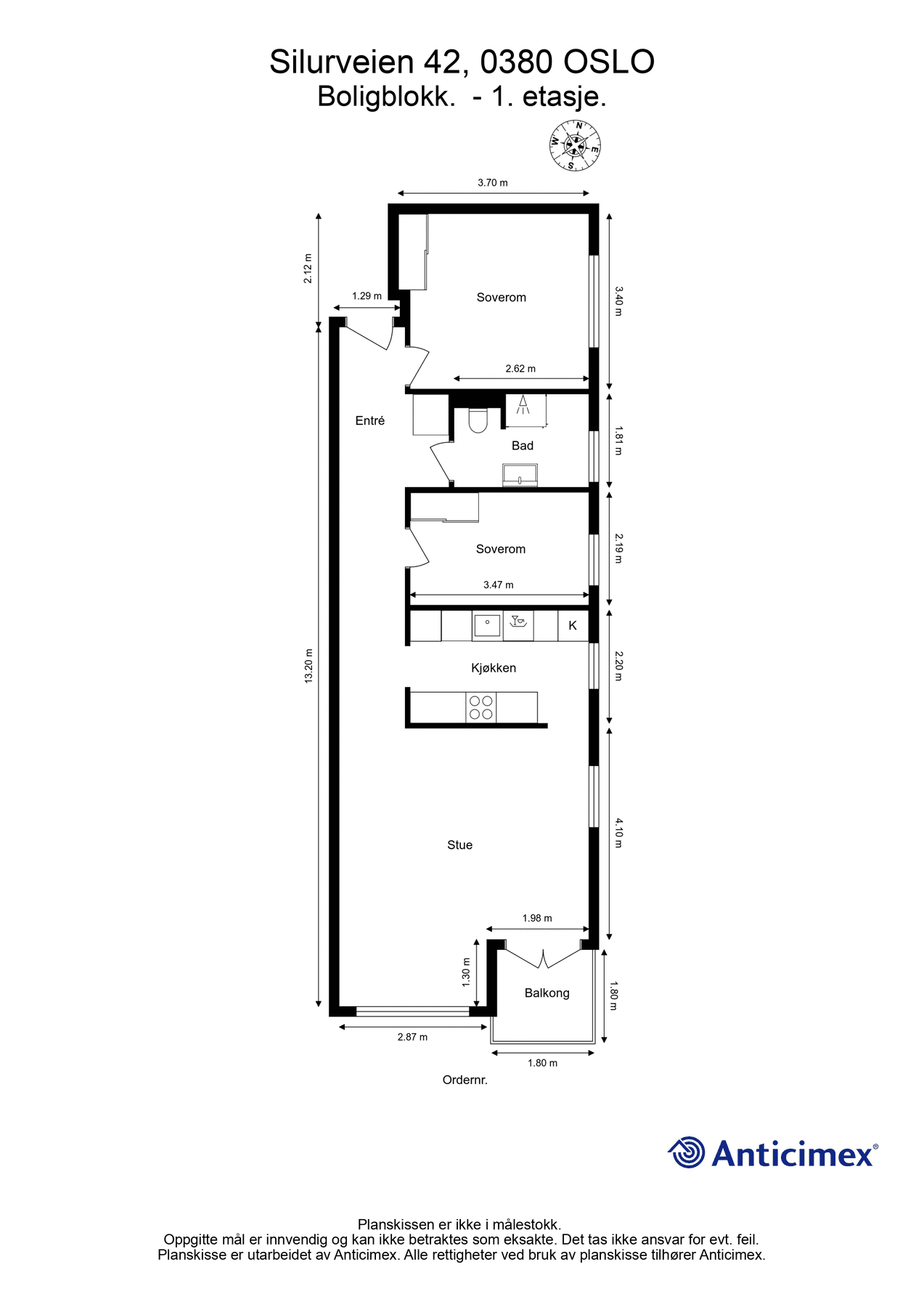
Silurveien 42, 0380 Oslo
Totalpris
5 665 739 kr
78 948 kr per m²
Prisantydning
5 250 000 kr
Felleskost/mnd
7 004 kr
Internt bruksareal
70 m² BRA-i
Soverom
2
Etasje
1.
Risikoer
Høydepunkter
Betaler du for mye i rente?
Oppdatert boligverdi kan gi lavere rente. Få tilbud fra opptil 3 meglere.
Meglere kan ta vederlag for verdivurdering hvis du ikke planlegger å selge.
Risikovurdering
Basert på AI-analyse av boligens salgsoppgave
1. Skjevheter i stue
Det er merkbare skjevheter i stue, hvor forskjellen mellom høyeste og laveste punkt er målt til 20 mm på 2,0 meter. Årsak til skjevhetene er ikke kjent. "Videre undersøkelser anbefales."
🏗️Byggteknisk
Spør megler
“Hvilke tiltak er planlagt for å undersøke og eventuelt utbedre skjevhetene i stuen?”
2. Alder på elektrisk anlegg
Det er ikke fremlagt samsvarserklæring på det elektriske anlegget, og det er angitt at "det kan medføre at mulige relevante opplysninger vedrørende bruk, funksjon og tilstand ikke har blitt gjort oppmerksom på".
⚡Elektrisk
Spør megler
“Hva er den forventede kostnaden for en fullstendig elektrisk kontroll og eventuell oppgradering av anlegget?”
3. Naturlig ventilasjon
Badet har kun naturlig ventilasjon, noe som kan medføre "økt fuktpåkjenning i våtrommet". Tiltak bør iverksettes ved behov.
💧Ventilasjon
Spør megler
“Hvilke tiltak er tenkt for å forbedre ventilasjonen på badet for å unngå fuktproblemer?”
4. Eldre vinduer
Vinduer er fra 2000, og selv om de har 2-lags glass, kan eldre vinduer bli mindre energieffektive.
🔍Vindu
Spør megler
“Hva vil det koste å skifte ut vinduer med nyere, mer energieffektive alternativer?”
5. Skjevhet i gulv
Det rapporteres om "skjevhetsmåling" i etasjeskilleren. Det anbefales videre undersøkelse.
📏Byggteknisk
Spør megler
“Hvilke neste steg anbefales for å få avklart årsaken til og omfanget av skjevhetene?”
6. Membran i bad
Tettesjiktet har en alder som tilsier at restlevetiden er usikker, og lekkasjesikkerheten kan derfor ikke verifiseres. "Eventuelt bør nytt tettesjikt etableres."
🛠️Våtrom
Spør megler
“Hva vil det koste å skifte ut tettesjiktet på badet, og hva inkluderer dette arbeidet?”
Vurderer du å selge boligen din?
Få gratis og uforpliktende tilbud fra opptil 3 lokale eiendomsmeglere.





