1 / 31
403 dager siden
Solgt
# Ensjø
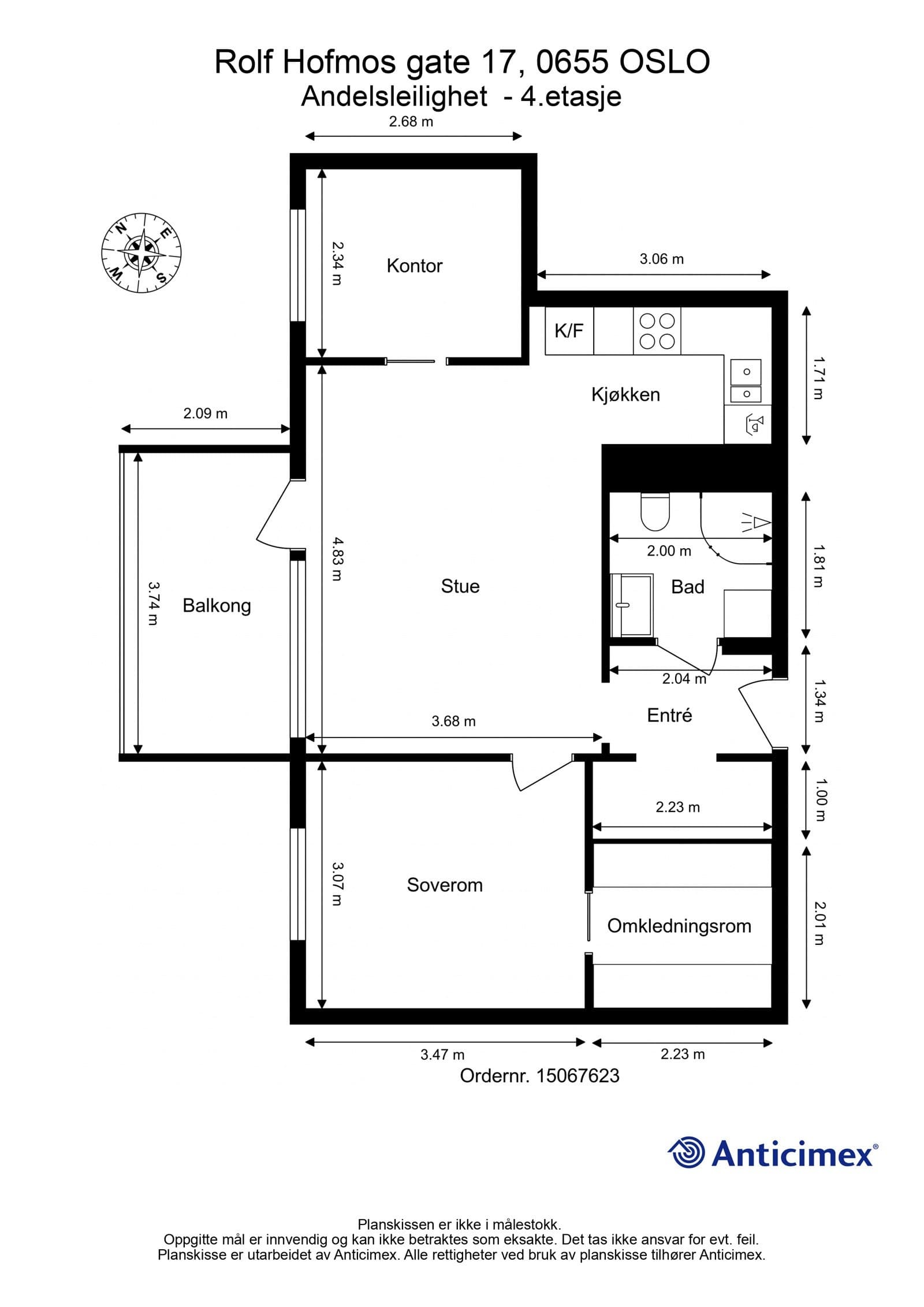
Rolf Hofmos Gate 17, 0655 Oslo
Totalpris
5 655 266 kr
100 706 kr per m²
Prisantydning
4 000 000 kr
Felleskost/mnd
11 569 kr
Internt bruksareal
56 m² BRA-i
Soverom
2
Etasje
4.
Risikoer
Høydepunkter
Betaler du for mye i rente?
Oppdatert boligverdi kan gi lavere rente. Få tilbud fra opptil 3 meglere.
Meglere kan ta vederlag for verdivurdering hvis du ikke planlegger å selge.
Risikovurdering
Basert på AI-analyse av boligens salgsoppgave
1. Tilstandsgrad 2 på bad
Tilstandsrapporten indikerer at "drenering fra innebygget sisterne er ikke registrert". Eventuell fukt i konstruksjonen kan medføre skader over tid før det oppdages.
🔧Byggteknisk
Spør megler
“Hva vil det koste å utbedre eventuelle fuktproblemer i badet?”
2. Slitasje på gulv og dører
Det er registrert at "gulvoverflater bærer preg av slitasje" og "noen innerdører har skader/slitasje". Dette kan medføre utbedringskostnader.
🪑Overflater
Spør megler
“Hvilke kostnader kan jeg forvente for å utbedre slitasjen på gulv og dører?”
3. Rust og misfarging av fliser i dusjsonen
Styret har bekreftet at det er rust i flisene i enkelte leiligheter, noe som kan tyde på eventuelle skjulte fuktproblemer.
💧Våtrom
Spør megler
“Hvilke tiltak vil bli iverksatt for å håndtere rustproblematikken i dusjsonen?”
4. Usikker levetid på membran i bad
Rapporten sier at "tettesjiktet har en alder som tilsier at restlevetiden er usikker".
⏳Byggteknisk
Spør megler
“Når bør jeg forvente at membranen må skiftes, og hva vil det koste?”
5. Høy felleskostnad
Felleskostnadene er 11 569 kr per måned, noe som er høyere enn gjennomsnittet for boliger i området.
💸Felleskostnader
Spør megler
“Er det planlagt noen oppjustering av felleskostnadene i nær fremtid?”
6. Skader på balkongdør
Balkongdøren har "stedvis hakk/merker/riper på nedre del". Dette kan føre til behov for utbedring.
🚪Utvendig
Spør megler
“Hvilke kostnader kan påløpe for å utbedre eller skifte balkongdøren?”
Vurderer du å selge boligen din?
Få gratis og uforpliktende tilbud fra opptil 3 lokale eiendomsmeglere.





