1 / 28
3 dager siden
Visning 29. apr kl 16:00
Øvre Mo
Nillemarka 9C, 6154 Ørsta
Totalpris
3 588 590 kr
50 000 kr per m²
Prisantydning
3 500 000 kr
Felleskost/mnd
1 250 kr
Internt bruksareal
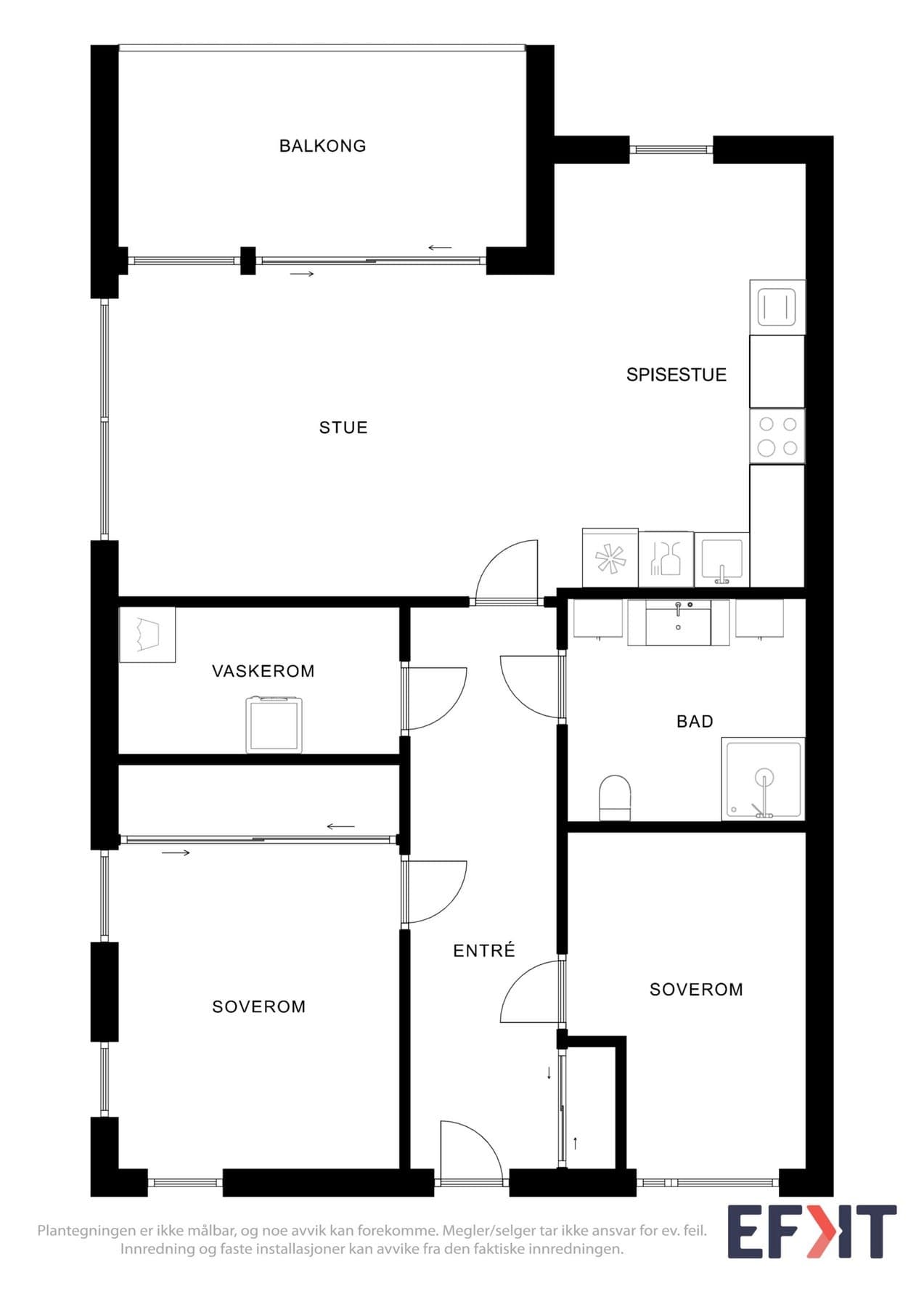
70 m² BRA-i
Soverom
2
Etasje
1.
Risikoer
Høydepunkter
Tilstandsrapport
Visning
Onsdag 29. april
16:00 – 17:00
Klar til å legge inn bud?
Skaff finansieringsbevis og vit hvor mye du kan by.
Nom. rente 4,99%, eff. rente 5,15%. 3 mill o/25 år. Totalt 5 274 258 kr.
Risikovurdering
Basert på AI-analyse av boligens salgsoppgave
1. Manglende vedlikeholdsplan for fellesdeler
Det er ikke utarbeidet tilstandsanalyserapport eller vedlikeholdsplan for fellesdeler i bygget, noe som kan medføre usikkerhet om fremtidig vedlikehold og kostnader.
📋Felleskostnader
Spør megler
“Hvordan planlegger sameiet å sikre vedlikehold av fellesarealer uten eksisterende tilstandsanalyserapport eller vedlikeholdsplan?”
2. Avvik i fall på vaskeromsgulv
Gulvet på vaskerommet har et svakt fall mot sluk som ikke oppfyller anbefalt fall i TEK17, noe som kan redusere effektiviteten ved bortleding av vann.
🏚️Byggteknisk
Spør megler
“Hva er vurdert av kostnader og risiko knyttet til den svake fall-løsningen på vaskeromsgulvet?”
3. Feilmelding på ventilasjonsanlegg
Displayet på ventilasjonsaggregatet viser feilmelding om 'føler utetemperatur', men ventilasjonen fungerer fortsatt. Det anbefales fagmessig kontroll før salg.
Kilde:
🔧Tekniske installasjoner
Spør megler
“Hva kan feilmeldingen på ventilasjonssystemet innebære av behov for reparasjon eller vedlikehold, og hva vil kostnaden kunne bli?”
4. Fuktighet i bodene i sameiet
Det har vært fuktighet fra grunnmuren i bodene i sameiet med saltutslag og muggskader dokumentert etter stikkprøver. Dette er en pågående sak mot utbygger.
💧Fukt og råte
Spør megler
“Hva er de pågående tiltakene og forventet tidsramme for å løse fuktproblematikken i sameiets boder?”
Vurderer du å selge boligen din?
Få gratis og uforpliktende tilbud fra opptil 3 lokale eiendomsmeglere.





