1 / 24
378 dager siden
Solgt
Øvre Grünerløkka/Rodeløkka
Marstrandgata 12, 0566 Oslo
Totalpris
5 238 540 kr
113 333 kr per m²
Prisantydning
5 100 000 kr
Felleskost/mnd
2 660 kr
Internt bruksareal
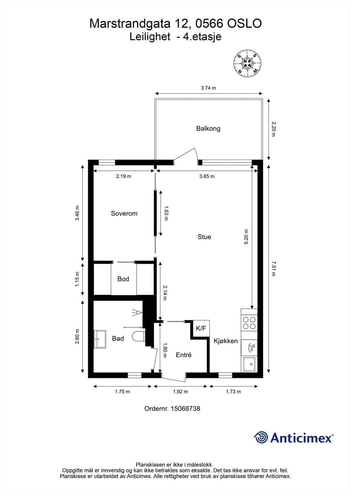
45 m² BRA-i
Soverom
1
Etasje
4.
Risikoer
Høydepunkter
Betaler du for mye i rente?
Oppdatert boligverdi kan gi lavere rente. Få tilbud fra opptil 3 meglere.
Meglere kan ta vederlag for verdivurdering hvis du ikke planlegger å selge.
Risikovurdering
Basert på AI-analyse av boligens salgsoppgave
1. Manglende samsvarserklæring for elektrisk anlegg
Det er ikke fremlagt samsvarserklæring for det elektriske anlegget, noe som kan indikere at det ikke har vært en tilstrekkelig faglig vurdering av anlegget.
⚠️Kjøpsrisiko
Spør megler
“Hvilke tiltak anbefales for å sikre at det elektriske anlegget er i forskriftsmessig stand?”
2. Sprekker på balkonggulvet
Balkonggulvet har "noe sprekker og er stedvis noe værslitt", som kan kreve utbedring og vedlikehold over tid.
🔨Byggteknisk
Spør megler
“Hva vil det koste å få reparert sprikkene i balkonggulvet?”
3. Automatisk lekkasjestopper mangler
Det er ikke montert automatisk lekkasjestopper for å begrense eventuelle lekkasjer fra vanninstallasjoner, noe som kan medføre risiko for vannskader.
💧Vvs
Spør megler
“Hva vil det koste å installere en lekkasjestopper i leiligheten?”
4. Unngått hulltaking/fuktmåling i badet
Badet er bygget som prefabrikkert modul, og det er ikke utført hulltaking eller fuktmåling, noe som kan tyde på manglende grundig kontroll.
🚿Bad
Spør megler
“Hvilke tiltak anbefales for å sikre at badet er fritt for fuktproblemer?”
5. Utbedring av tilstandsgrad
Flere områder i boligen er rapportert med tilstandsgrad 2, noe som indikerer "vesentlige avvik" og behov for vedlikehold snart.
🛠️Vedlikehold
Spør megler
“Hvilke spesifikke områder i leiligheten trenger umiddelbar oppmerksomhet?”
6. Bruk av kjellerbod
Kjellerboder tilhører sameiets fellesareal, og bruken kan endres av sameiet hvilket kan gi usikkerhet om tilgjengelighet.
🏘️Fellesareal
Spør megler
“Hvordan kan endringer i sameiet påvirke bruken av kjellerboden?”
Vurderer du å selge boligen din?
Få gratis og uforpliktende tilbud fra opptil 3 lokale eiendomsmeglere.





