1 / 37
71 dager siden
Solgt
Ila
Kleists Gate 4, 7018 Trondheim
Totalpris
5 485 100 kr
48 636 kr per m²
Prisantydning
5 350 000 kr
Felleskost/mnd
4 698 kr
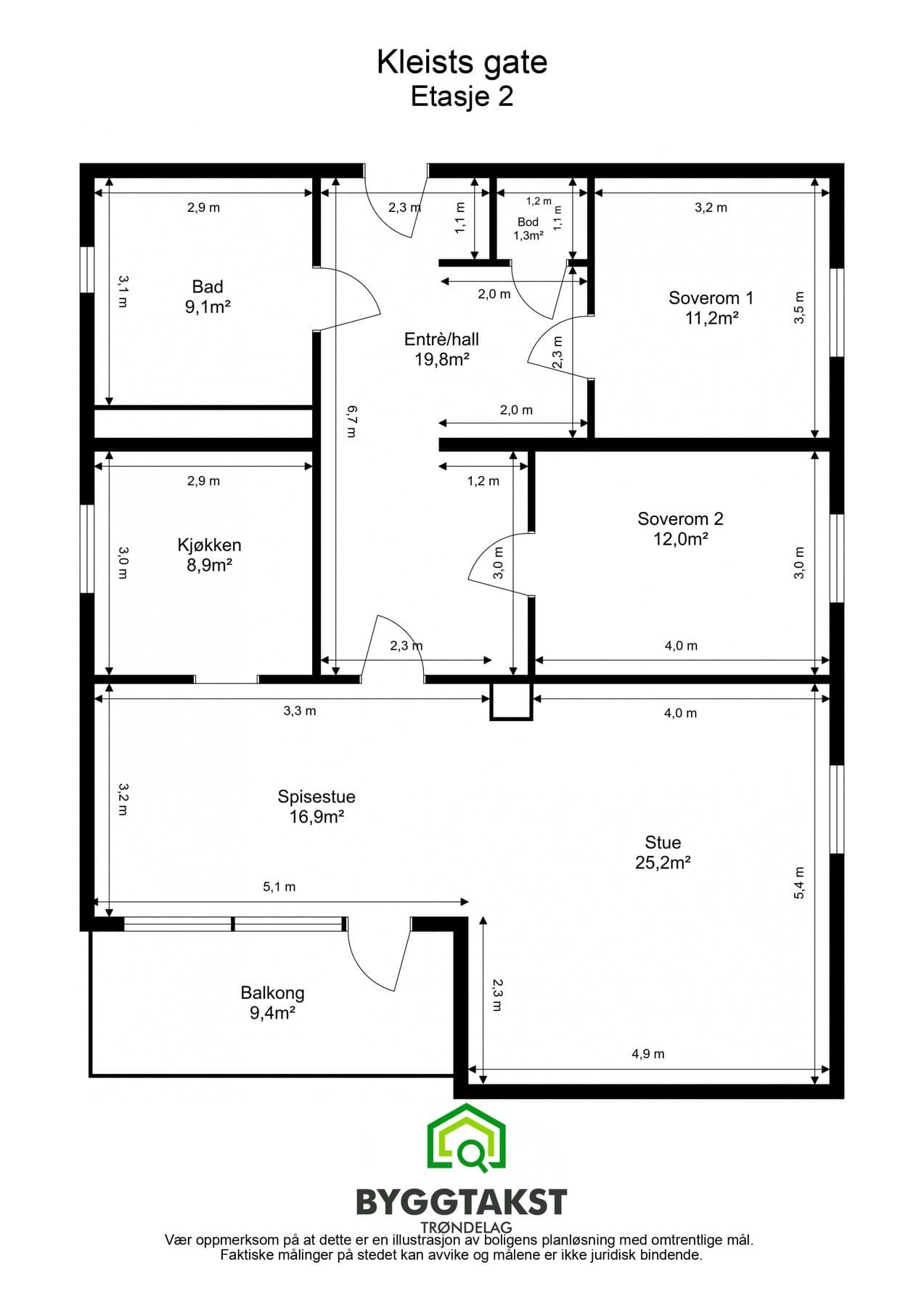
Internt bruksareal
110 m² BRA-i
Soverom
2
Etasje
2.
Risikoer
Høydepunkter
Tilstandsrapport
Betaler du for mye i rente?
Oppdatert boligverdi kan gi lavere rente. Få tilbud fra opptil 3 meglere.
Meglere kan ta vederlag for verdivurdering hvis du ikke planlegger å selge.
Risikovurdering
Basert på AI-analyse av boligens salgsoppgave
1. Rekkverk er lavt og åpninger for store
Balkongrekkeverkene har åpninger som ikke møter dagens forskriftskrav, og rekkverket er for lavt. Selv om det ikke stilles krav til utbedring, kan dette være en sikkerhetsmessig bekymring.
⚠️Byggteknisk
Spør megler
“Hva kan en eventuell oppgradering av balkongrekkverket koste, og finnes det planer eller anbefalinger for dette?”
2. Ingen radonmåling utført
Det er ikke foretatt radonmålinger, og bygget har ikke radonsperre. Radon kan utgjøre en helsefare hvis nivåene er høye.
☢️Miljø
Spør megler
“Er det planer om å gjennomføre radonmålinger i nær framtid, og kan det oppgis informasjon om lignende boliger i området?”
3. Eldre vann- og avløpsledninger
Innvendige vannledninger og avløpsrør er av eldre årgang med mer enn halvparten av forventet brukstid passert. Risikoen for plutselige skader øker selv om de fungerer i dag.
💧Tekniske installasjoner
Spør megler
“Hva vil det typisk koste å skifte ut vann- og avløpsledningene i denne leiligheten?”
4. Usikkert elektrisk anlegg
Det er kun foretatt en forenklet kontroll av det elektriske anlegget, og tilstandsrapporten anbefaler en evt. fullstendig el-kontroll for sikkerhetens skyld.
⚡Elektrisk
Spør megler
“Er det kjent om det elektriske anlegget nylig er blitt fullstendig definert og kontrollert av en el-sertifisert takstmann?”
5. Støymessige forhold mellom etasjer
Det er rapportert svært dårlig lydisolering mellom 4. og 5. etasje, noe som kan gi vesentlig sjenanse.
Kilde:
🔊Lydforhold
Spør megler
“Er det kjent om tiltak er gjort eller planlagt for å bedre lydisoleringen mellom leiligheter i 4. og 5. etasje?”
Vurderer du å selge boligen din?
Få gratis og uforpliktende tilbud fra opptil 3 lokale eiendomsmeglere.





