1 / 27
204 dager siden
Solgt
Vika
Huitfeldts Gate 14B, 0253 Oslo
Totalpris
6 067 188 kr
128 891 kr per m²
Prisantydning
5 850 000 kr
Felleskost/mnd
3 923 kr
Internt bruksareal
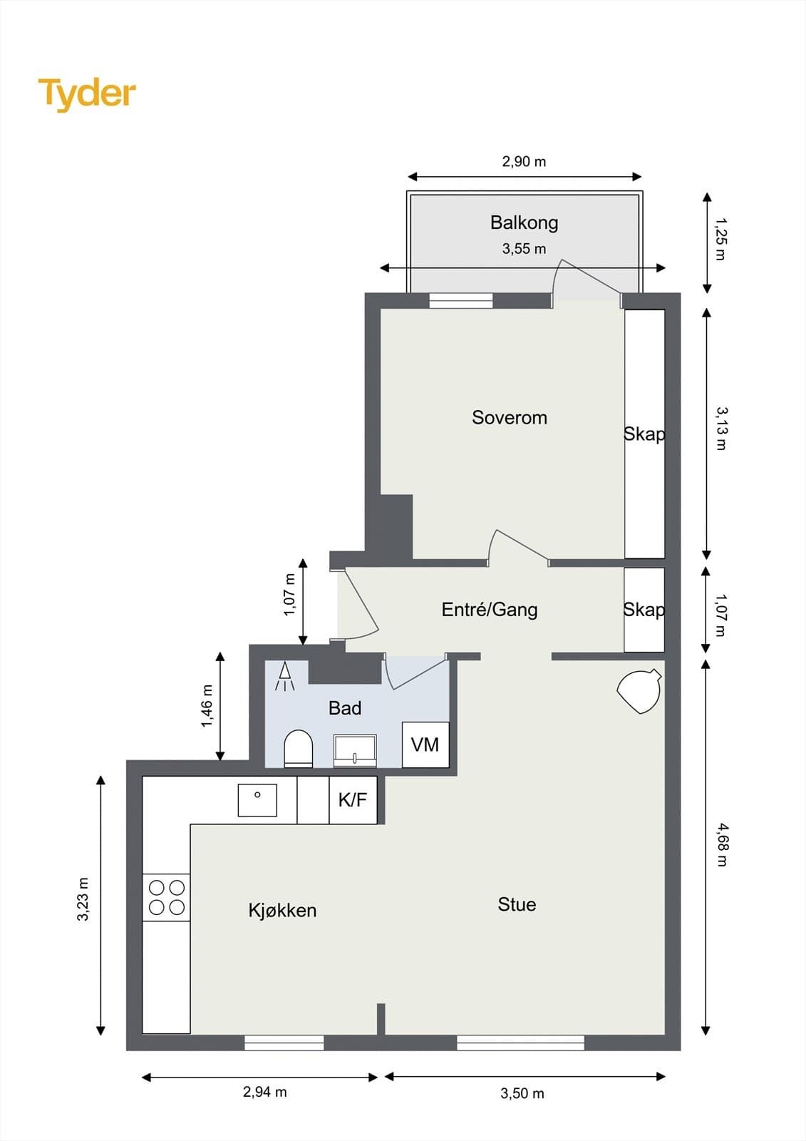
47 m² BRA-i
Soverom
1
Etasje
2.
Risikoer
Høydepunkter
Betaler du for mye i rente?
Oppdatert boligverdi kan gi lavere rente. Få tilbud fra opptil 3 meglere.
Meglere kan ta vederlag for verdivurdering hvis du ikke planlegger å selge.
Risikovurdering
Basert på AI-analyse av boligens salgsoppgave
1. Eldre vinduer med varmetap
Vinduer fra 1985 med tolags isolerglass er av eldre dato og har høyere varmetap og lavere isolasjonsevne, noe som kan gi økte oppvarmingskostnader.
🏚️Byggteknisk
Spør megler
“Hva vil det koste å bytte ut de eldste vinduene i leiligheten, og har det vært vurdert energitiltak ved vindusutskiftning?”
2. Svak ventilasjon i kjøkken og stue
Kjøkkenet mangler avtrekksventilasjon, og stuen har ingen ventiler, noe som kan føre til dårlig luftkvalitet uten å åpne vinduer ofte.
💨Ventilasjon
Spør megler
“Hvordan oppleves luftkvaliteten i kjøkken og stue i ulike årstider, og finnes det mulighet for å installere mekanisk avtrekk?”
3. Motfall og alder på baderom
Badet har registrert motfall på gulvet utenfor dusjsone, noe som øker risiko for vannansamling og lekkasjer. Badet er pusset opp i 2003/04 og har overskredet forventet levetid for membran.
🚿Våtrom
Spør megler
“Hva er estimert kostnad for å utbedre badet med tanke på motfall og membranens alder?”
4. Ledningsskap ikke inspisert
Fordelerskapet for vann i rør-i-rør system på badet var ikke besiktiget på grunn av manglende nøkkel, og det ikke lokalisert drensåpning fra skapet, noe som kan gi risiko for vannskader ved lekkasjer.
🚰Vvs
Spør megler
“Er det mulig å få tilgang til fordelerskapet for nærmere inspeksjon, og hvor stor er risikoen for vannskade?”
5. Elektrisk anlegg mangler samsvarserklæring
Det elektriske anlegget har ingen samsvarserklæring etter 1999, og er vurdert med tilstandsgrad 2 på grunn av alder og manglende dokumentasjon, noe som innebærer en viss økt risiko.
⚡Elektrisk
Spør megler
“Kunne du beskrive hvor omfattende oppdateringer som er gjort på det elektriske anlegget, og anbefales det en el-kontroll?”
Vurderer du å selge boligen din?
Få gratis og uforpliktende tilbud fra opptil 3 lokale eiendomsmeglere.





