1 / 36
354 dager siden
Solgt
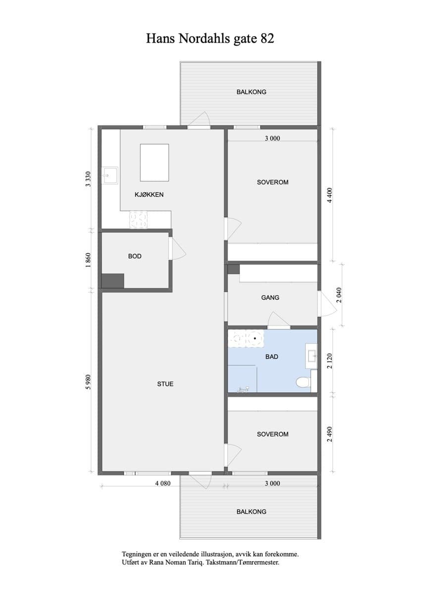
Grefsen Stasjon
Hans Nordahls Gate 82, 0485 Oslo
Totalpris
8 726 785 kr
103 659 kr per m²
Prisantydning
8 500 000 kr
Felleskost/mnd
4 249 kr
Internt bruksareal
82 m² BRA-i
Soverom
2
Etasje
2.
Risikoer
Høydepunkter
Betaler du for mye i rente?
Oppdatert boligverdi kan gi lavere rente. Få tilbud fra opptil 3 meglere.
Meglere kan ta vederlag for verdivurdering hvis du ikke planlegger å selge.
Risikovurdering
Basert på AI-analyse av boligens salgsoppgave
1. Byggegrunn og stabilitet
Det presiseres at "betongsåle på ukjent grunn for takstmannen". Dette kan føre til usikkerhet om bygningens stabilitet.
🏗️Byggteknisk
Spør megler
“Hva kan konsekvensene av dette være for bygningens langtidsholdbarhet?”
2. Kostnader ved el-anlegg
Det anbefales "en teknisk vurdering av el-anlegg, da det ikke foreligger dokumentasjon eller har vært kontroll/el-tilsynsrapport på hele anlegget i nyere tid".
⚡Elektrisk anlegg
Spør megler
“Hva vil det koste å få en fullstendig kontroll av det elektriske anlegget?”
3. Balkongdør med slitasje
Det ble registrert at "balkongdør subber mot terskel". Dette kan tyde på behov for tilpasning eller utskifting.
🔧Utvendig
Spør megler
“Hva vil det koste å justere eller eventuelt erstatte balkongdøren?”
4. Felleskostnader og vedtekter
Felleskostnadene er på 4249 kr per måned, noe som kan være høyt, spesielt for nye kjøpere.
💰Felleskostnader
Spør megler
“Hvordan er felleskostnadene fordelt og hva dekker de?”
5. Avvik fra tegninger
Det bemerkes at "balkong med adkomst stue er større i forhold til tegningene i kommunen", noe som kan skape problem med regulering.
📐Regulering
Spør megler
“Hvilke konsekvenser kan dette ha for eiendommens lovlighet eller fremtidig salg?”
6. Vannskader i boden
Det påpekes at det kan være "avvik og tiltak som ikke kommer frem av rapporten", noe som kan indikere skjulte problemer med vann og fukt.
💦Våtrom
Spør megler
“Er det utført noen fuktmålinger i boden, og hva oppdaget de?”
Vurderer du å selge boligen din?
Få gratis og uforpliktende tilbud fra opptil 3 lokale eiendomsmeglere.





