1 / 41
145 dager siden
Solgt
Frogner
Hafrsfjordgata 29A, 0268 Oslo
Totalpris
15 283 990 kr
118 254 kr per m²
Prisantydning
14 900 000 kr
Felleskost/mnd
8 900 kr
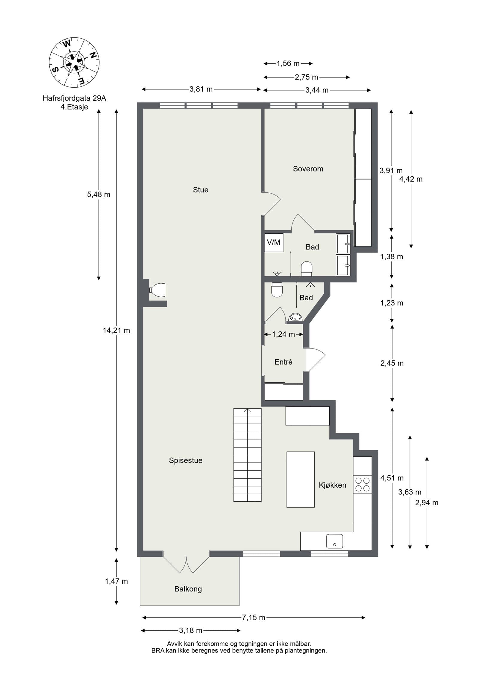
Internt bruksareal
126 m² BRA-i
Soverom
2
Etasje
4.
Risikoer
Høydepunkter
Betaler du for mye i rente?
Oppdatert boligverdi kan gi lavere rente. Få tilbud fra opptil 3 meglere.
Meglere kan ta vederlag for verdivurdering hvis du ikke planlegger å selge.
Risikovurdering
Basert på AI-analyse av boligens salgsoppgave
1. Mangler dokumentasjon på membranarbeid
Dokumentasjon på utførte membranarbeider på badene fra 2006 og 2020 foreligger ikke, noe som gir usikkerhet rundt kvalitet og tetthet.
🔧Byggteknisk
Spør megler
“Hva er kostnadsrammen og anbefalte tiltak for å dokumentere eller sikre membranenes kvalitet og tetthet?”
2. Ventilasjonsvifte fungerer ikke
Mekanikken i avtrekksviften på badet i hybelen fungerer ikke, viften gir ikke merkbart trekk og bør serviceres eller byttes ut.
💨Ventilasjon
Spør megler
“Hva forventes det å koste å reparere eller bytte ut den defekte avtrekksviften på hybelbadet?”
3. Fallforhold er ikke optimal på bad
Det er påvist motfall og utilstrekkelig fall i dusj- og gulvarealer på badene, særlig på badet i hybelen hvor vann kan samle seg og ikke renne til sluk.
🚿Byggteknisk
Spør megler
“Hvordan kan mangelfulle fallforhold på badene utbedres, og hva vil dette normalt koste?”
4. Kabelinnføringer og el-dokumentasjon mangler
Store deler av det elektriske anlegget mangler dokumentasjon fra tidligere eiere, og kabelinnføringer og hull i sikringsskap er til dels ikke tilstrekkelig festet.
Kilde:
⚡Elektrisk anlegg
Spør megler
“Hva anbefales av videre kontroll eller oppgradering av det elektriske anlegget, og hvilke kostnader må man regne med?”
5. Vinduer og balkongdør har passert levetid
Vinduer og balkongdør fra 1987 er for gamle, noen vinduer subber og beslaget ved takvinduer er ikke tett, noe som kan gi økt vedlikeholdsbehov og trekk.
🪟Vedlikehold
Spør megler
“Hva vil en utskifting eller omfattende vedlikehold av vinduer og balkongdør typisk koste?”
Vurderer du å selge boligen din?
Få gratis og uforpliktende tilbud fra opptil 3 lokale eiendomsmeglere.





