1 / 30
5 dager siden
Visning 29. apr kl 17:00
Skjetten
Glostrupveien 9, 2013 Skjetten
Totalpris
4 358 765 kr
52 401 kr per m²
Prisantydning
3 900 000 kr
Felleskost/mnd
7 166 kr
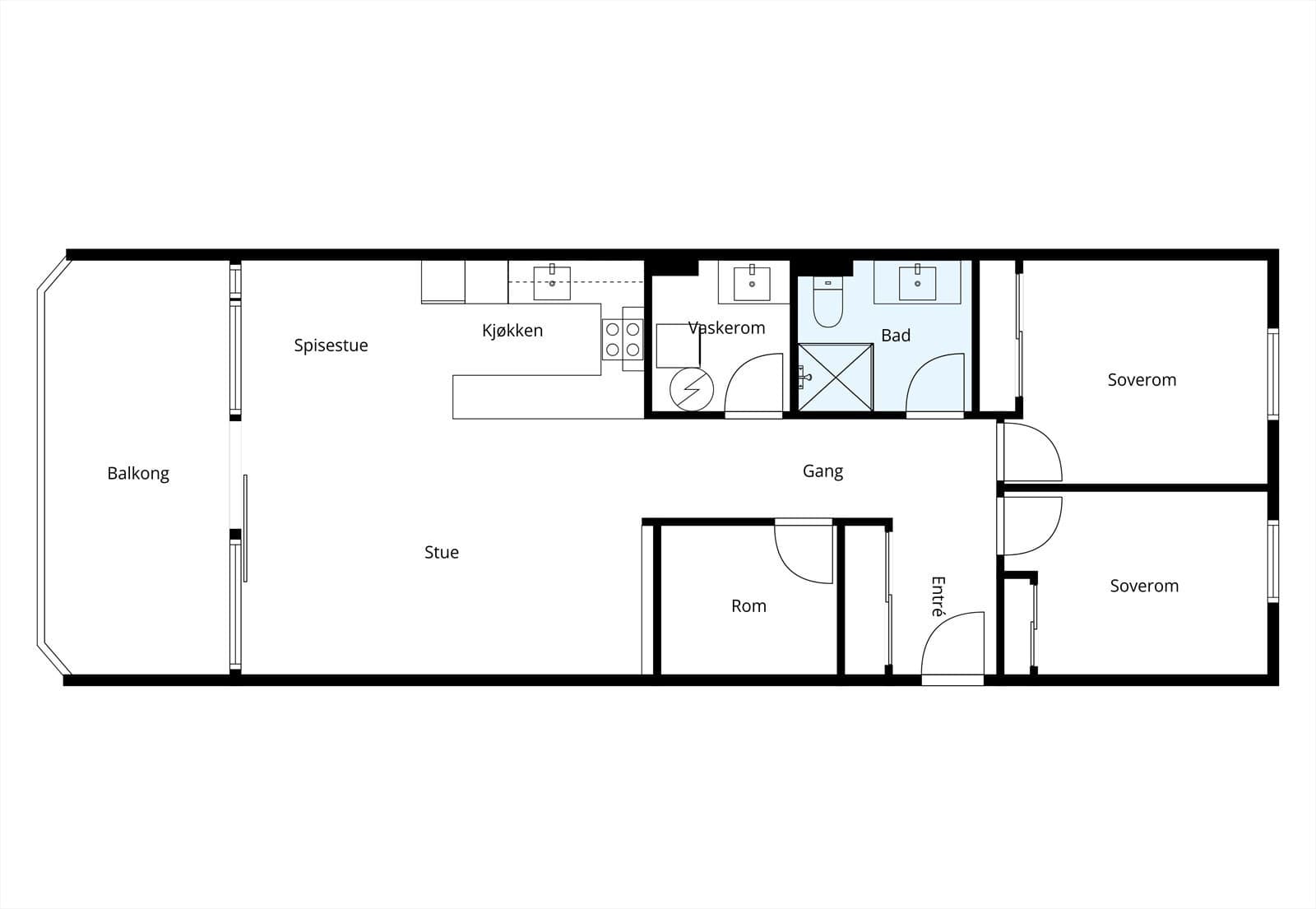
Internt bruksareal
83 m² BRA-i
Soverom
2
Etasje
3.
Risikoer
Høydepunkter
Tilstandsrapport
Visning
Onsdag 29. april
17:00 – 18:00
Klar til å legge inn bud?
Skaff finansieringsbevis og vit hvor mye du kan by.
Nom. rente 4,99%, eff. rente 5,15%. 3 mill o/25 år. Totalt 5 274 258 kr.
Risikovurdering
Basert på AI-analyse av boligens salgsoppgave
2. Manglende mekanisk avtrekk
Bad og vaskerom har kun naturlig ventilasjon. Det anbefales å montere elektrisk avtrekksvifte, men borettslagets vedtekter kan begrense dette. Kjøkken har kun kullfilterventilator uten mekanisk avtrekk. Dette kan føre til fukt- og luktproblemer.
💨Ventilasjon
Spør megler
“Hvordan håndterer borettslaget eventuelle begrensninger i montering av mekanisk avtrekk på bad, vaskerom og kjøkken, og hva er konsekvensene?”
3. Skjulte vannledninger og avløp
Vann- og avløpsrør er plastrør (rør-i-rør og PVC) installert i 2023, men kun synlige deler er besiktiget. Det er usikkerhet om tilstanden på skjulte ledninger i vegg og gulv.
🚰Vvs
Spør megler
“Kan det gis nærmere informasjon om tilstanden på vann- og avløpsledninger skjult i vegger og gulv, samt mulige risikoer ved disse?”
4. Anbefalt el-kontroll
Elektrisk anlegg er automatsikringer plassert i felles gang og uten samsvarserklæring for arbeider. Det anbefales utvidet el-kontroll av autorisert takstmann.
🔌Elektrisk
Spør megler
“Er det kjent hva en utvidet el-kontroll kan avdekke av feil eller kostnader, og er det planlagt eventuelle tiltak?”
Vurderer du å selge boligen din?
Få gratis og uforpliktende tilbud fra opptil 3 lokale eiendomsmeglere.





