1 / 33
347 dager siden
Solgt
Vålerenga / Galgeberg
Galgeberg 3A, 0657 Oslo
Totalpris
4 701 562 kr
111 714 kr per m²
Prisantydning
4 400 000 kr
Felleskost/mnd
4 811 kr
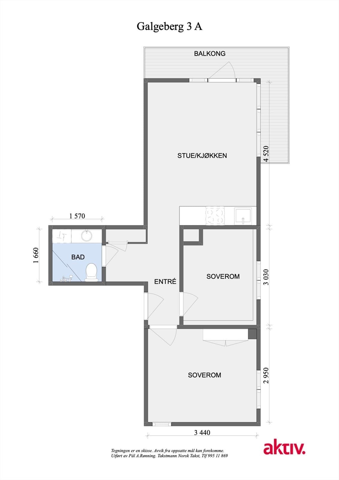
Internt bruksareal
42 m² BRA-i
Soverom
2
Etasje
3.
Risikoer
Høydepunkter
Betaler du for mye i rente?
Oppdatert boligverdi kan gi lavere rente. Få tilbud fra opptil 3 meglere.
Meglere kan ta vederlag for verdivurdering hvis du ikke planlegger å selge.
Risikovurdering
Basert på AI-analyse av boligens salgsoppgave
1. Eldre vinduer
Vinduer fra 1980 og 1985 har nådd godt over halvparten av forventet funksjonstid og det vil være større risiko for punktering av glass.
🔍Byggteknisk
Spør megler
“Hva vil det koste å skifte ut de eldre vinduene?”
2. Ventilasjon
Det rapporteres om mangelfull ventilasjon i leiligheten, som kan medføre uønsket fuktbelastning.
💨Ventilasjon
Spør megler
“Hvilke tiltak planlegges for å bedre ventilasjonen i leiligheten?”
3. Eldre radiatorer
Radiatorer og radiatorrør i leiligheten er fra byggeåret 1939 og kan ha behov for utskifting.
🔥Vannbåren varme
Spør megler
“Når bør radiatorene i leiligheten skiftes ut, og hva kan kostnadene bli?”
4. Dårlig sug fra avtrekksventil
Det er registrert dårlig sug gjennom avtrekksventilen i badet, som kan medføre problemer med fukt.
💨Ventilasjon
Spør megler
“Hva er planene for å utbedre problemet med avtrekksventilen?”
5. Kostnad til rehabilitering av bad
Det anbefales å rehabilitere badet med utskiftning av tettesjikt/membran på sikt.
🛁Våtrom
Spør megler
“Hva vil rehabilitering av badet koste og hva innebærer det?”
6. Feilmontert vask på badet
Det er tidligere rapportert lekkasje pga. feilmontert vask, men dette skal være rettet.
🚿Våtrom
Spør megler
“Hvilke garantier kan gi for at det ikke vil oppstå nye lekkasjer på badet?”
Vurderer du å selge boligen din?
Få gratis og uforpliktende tilbud fra opptil 3 lokale eiendomsmeglere.





