1 / 43
4 dager siden
Visning etter avtale
Østerås
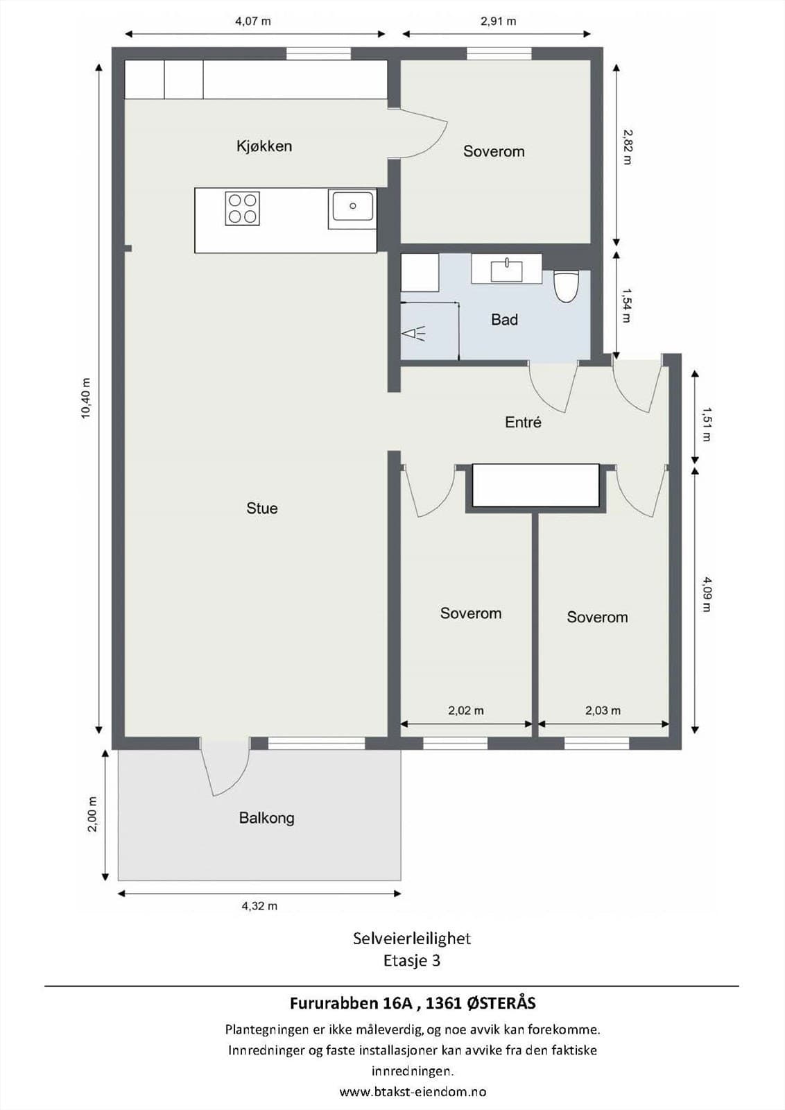
Fururabben 16A, 1361 Østerås
Totalpris
7 664 650 kr
92 301 kr per m²
Prisantydning
7 250 000 kr
Felleskost/mnd
5 500 kr
Internt bruksareal
81 m² BRA-i
Soverom
3
Etasje
3.
Risikoer
Høydepunkter
Tilstandsrapport
Visning
Vurderer du å selge boligen din?
Få gratis og uforpliktende tilbud fra opptil 3 lokale eiendomsmeglere.
Risikovurdering
Basert på AI-analyse av boligens salgsoppgave
1. Eldre vannbåren varme
Tekniske installasjoner for vannbåren varme har passert mer enn halvparten av forventet brukstid, noe som kan medføre økt behov for vedlikehold og mulige utskiftninger på sikt.
⚙️Tekniske installasjoner
Spør megler
“Hva kan det forventede kostnadsnivået være for utskiftning eller større vedlikehold av vannbåren varme-anlegget?”
2. Naturlig ventilasjon på bad
Badet har kun naturlig ventilasjon uten elektrisk avtrekksvifte, noe som kan gjøre det vanskelig å fjerne fukt og lukt effektivt. Ifølge eier er det ikke tillatt å montere elektrisk avtrekksvifte etter sameiets regler.
💧Våtrom
Spør megler
“Hvilke alternative løsninger kan anbefales for å bedre ventilasjonen i baderommet gitt sameiets restriksjoner?”
3. Kullfilterventilator på kjøkken
Kjøkkenet har kun kullfilterventilator som ikke gir mekanisk avtrekk fra kokesonen, noe som gjør ventilasjonen mindre effektiv og krever regelmessig skifte av filter.
🍽️Kjøkken
Spør megler
“Har det tidligere vært vurdert eller undersøkt muligheter for forbedret kjøkkenventilasjon innenfor sameiets regelverk?”
4. Råteskader på fasader
OBOS Prosjekt har i 2025 avdekket råteskader på konstruksjon bak fasadeplatene i sameiet, og det planlegges totalrehabilitering av fasadene som skal diskuteres på årsmøte våren 2026.
🏚️Byggteknisk
Spør megler
“Hva er forventet tidsplan og økonomisk konsekvens for sameierne i forbindelse med planlagt totalrehabilitering av fasadene?”
5. Skadedyr observert tidligere
Tidligere eier har observert sølvkre på badet og skjeggkre på kjøkkenet, som ikke er observert etter oppussing i 2026, men ingen tiltak er gjort i sameiet.
🐜Skadedyr
Spør megler
“Hvordan håndterer sameiet skadedyrsproblemer, og hvilke tiltak kan kjøper forvente ved eventuell oppblomstring?”
6. Forslag ikke vedtatt
Flere forslag vedrørende forbedringer som sykkelvask, parkering og hyppigere tømming av pappavfall er ikke tatt til følge pga. sameiets økonomi og andre prioriteringer.
💰Økonomi
Spør megler
“Hvordan påvirker sameiets økonomi boligens potensielle vedlikeholds- og forbedringsarbeider fremover?”
Klar til å legge inn bud?
Skaff finansieringsbevis og vit hvor mye du kan by. Søk enkelt og digitalt.
Nom. rente 4,99%, eff. rente 5,15%. 3 mill o/25 år. Totalt 5 274 258 kr.





