1 / 21
415 dager siden
Solgt
Darres Gate 40, 0175 Oslo
Totalpris
6 901 240 kr
86 250 kr per m²
Prisantydning
3 200 000 kr
Felleskost/mnd
22 949 kr
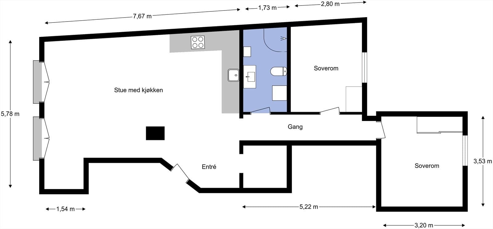
Internt bruksareal
80 m² BRA-i
Soverom
2
Etasje
2.
Risikoer
Høydepunkter
Betaler du for mye i rente?
Oppdatert boligverdi kan gi lavere rente. Få tilbud fra opptil 3 meglere.
Meglere kan ta vederlag for verdivurdering hvis du ikke planlegger å selge.
Risikovurdering
Basert på AI-analyse av boligens salgsoppgave
1. Mangelfull ventilasjon
Det er påvist mangelfull ventilasjon på ett eller flere rom i boligen.
🏗️Bygningsmessig
Spør megler
“Hva vil kostnadene være for å utbedre ventilasjonen i leiligheten?”
2. Manglende radonmålinger
Selger har ikke foretatt radonmåling. Eventuelle tiltak må bekostes av kjøper hvis det viser seg at radonnivået er for høyt.
🏠Bygningsmessig
Spør megler
“Hvilke tiltak for radonsikring må eventuelt vurderes, og hva vil kostnadene være?”
3. Begrenset bodareal
Det medfølger en kjellerbod på 5,5 m², noe som kan være lite for god oppbevaring.
📦Oppbevaring
Spør megler
“Kan jeg eventuelt leie mer bodplass i området?”
4. Arealavvik i forhold til salgsoppgave
Arealoppmålingen er ikke fremlagt i detalj, og det er opplyst at arealet kan ha avvik.
📏Areal
Spør megler
“Hvordan vil avviket i areal eventuelt påvirke verdien på boligen?”
5. Bygget er fra 1912
Leiligheten ligger i et bygg fra 1912, som kan ha eldre bygningsmessige forhold som kan føre til fremtidige utbedringskostnader.
🏛️Bygningens tilstand
Spør megler
“Hvilken type vedlikehold kreves vanligvis for bygninger av denne alderen?”
Vurderer du å selge boligen din?
Få gratis og uforpliktende tilbud fra opptil 3 lokale eiendomsmeglere.





