1 / 48
20 dager siden
Solgt
Rodeløkka
Christian Michelsens Gate 16, 0568 Oslo
Totalpris
5 402 266 kr
99 786 kr per m²
Prisantydning
5 290 000 kr
Felleskost/mnd
4 772 kr
Internt bruksareal
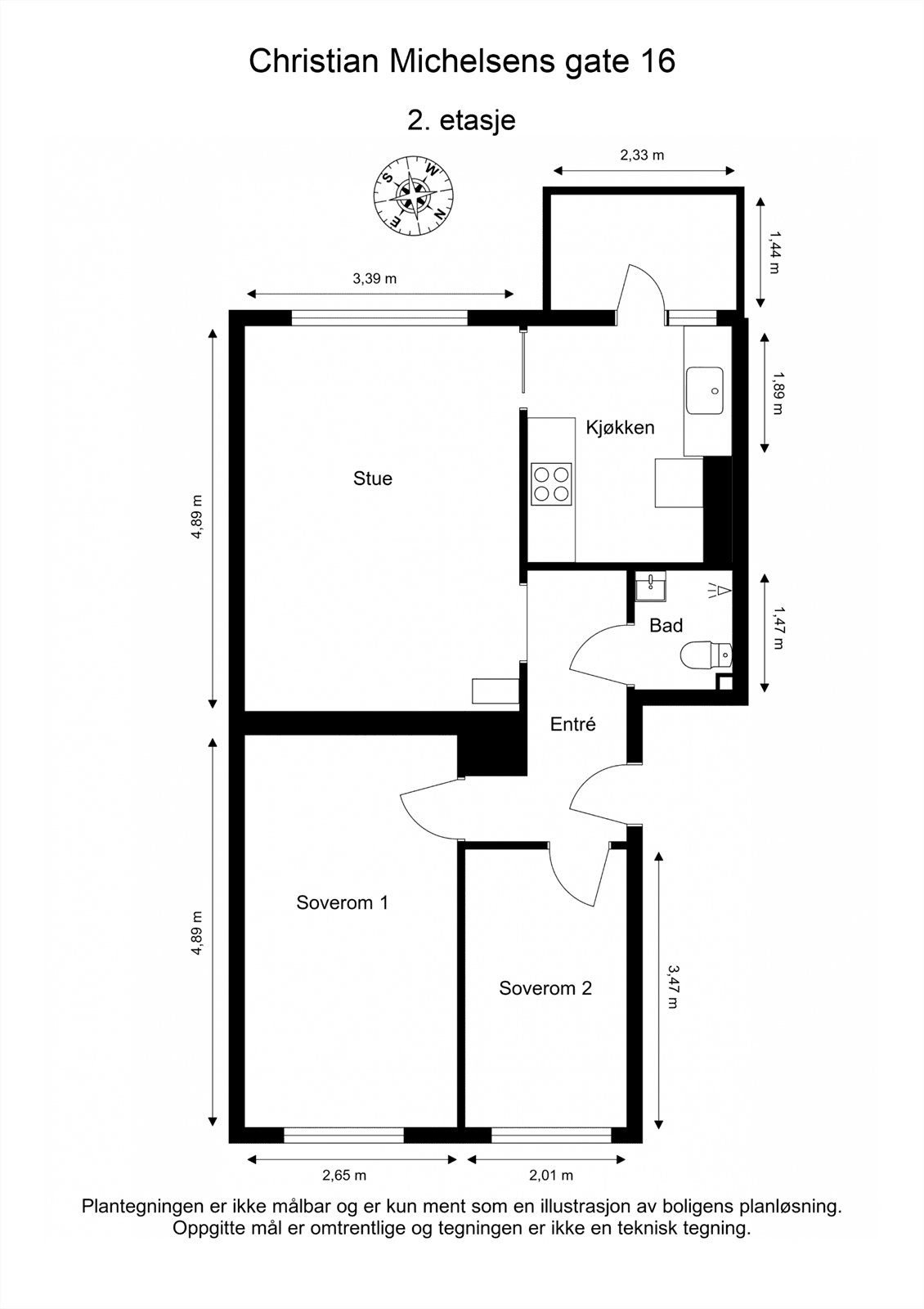
54 m² BRA-i
Soverom
2
Etasje
2.
Risikoer
Høydepunkter
Tilstandsrapport
Betaler du for mye i rente?
Oppdatert boligverdi kan gi lavere rente. Få tilbud fra opptil 3 meglere.
Meglere kan ta vederlag for verdivurdering hvis du ikke planlegger å selge.
Risikovurdering
Basert på AI-analyse av boligens salgsoppgave
1. Sprekkdannelser og hull i badfliser
Badet har sprekkdannelser i flislim og fuger på begge vegger, inkludert hull etter tidligere oppheng og sprekk i fuger i dusjsonen. Slike skader kan føre til fuktproblemer over tid. Det anbefales utbedring for å hindre økt fuktbelastning på konstruksjonen.
🚿Våtrom
Spør megler
“Hva er estimert kostnad og omfang for utbedring av sprekkdannelser og hull i flisene på badet?”
2. Elastiske fuger på bad må skiftes
Det er registrert sprukket og uttørket mykfug i overgang mellom gulv og vegg på badet, noe som kan øke risikoen for fuktinntrengning i konstruksjonen over tid. Utskifting av fugene anbefales.
⚠️Våtrom
Spør megler
“Kan du gi detaljert informasjon om hva utskifting av fuger på badet innebærer og kostnadsramme for dette?”
3. Uvisst om slukmansjett er korrekt montert
Badet er oppusset i 2004/2005 og membranen har passert forventet teknisk levetid. Det var ikke mulig å verifisere korrekt montering av slukmansjett, noe som gir økt risiko for fuktproblemer og behov for oppgradering innen rimelig tid.
💧Våtrom
Spør megler
“Hva er risikoen forbundet med usikker montering av slukmansjett, og hva kan kostnadene bli ved nødvendige oppgraderinger?”
4. Ventilasjon med naturlig lufting
Leiligheten har naturlig ventilasjon (oppdriftsventilasjon) uten mekanisk eller balansert system. Manglende tilluftsventiler i soverom kan føre til dårligere luftkvalitet og økt fuktbelastning hvis ikke tilstrekkelig lufting ivaretas.
🌬Ventilasjon
Spør megler
“Hva vil det koste å etablere mekanisk eller balansert ventilasjon, eller å installere tilluftsventiler i soverommene?”
5. Manglende verifisering av vannavstengning
Det ble ikke verifisert fungerende avstengningsmuligheter for vanninstallasjonen til leiligheten ved befaring. Dette kan føre til økt skadeomfang ved vannlekkasjer.
🚱Vvs
Spør megler
“Kan dere bekrefte at stoppeventilene til leiligheten fungerer som de skal, og hva koster det å kontrollere eller utbedre dette?”
Vurderer du å selge boligen din?
Få gratis og uforpliktende tilbud fra opptil 3 lokale eiendomsmeglere.





