1 / 28
264 dager siden
Solgt
Carl Berner
Carl Berners Plass 2, 0568 Oslo
Totalpris
3 893 613 kr
118 675 kr per m²
Prisantydning
3 700 000 kr
Felleskost/mnd
4 179 kr
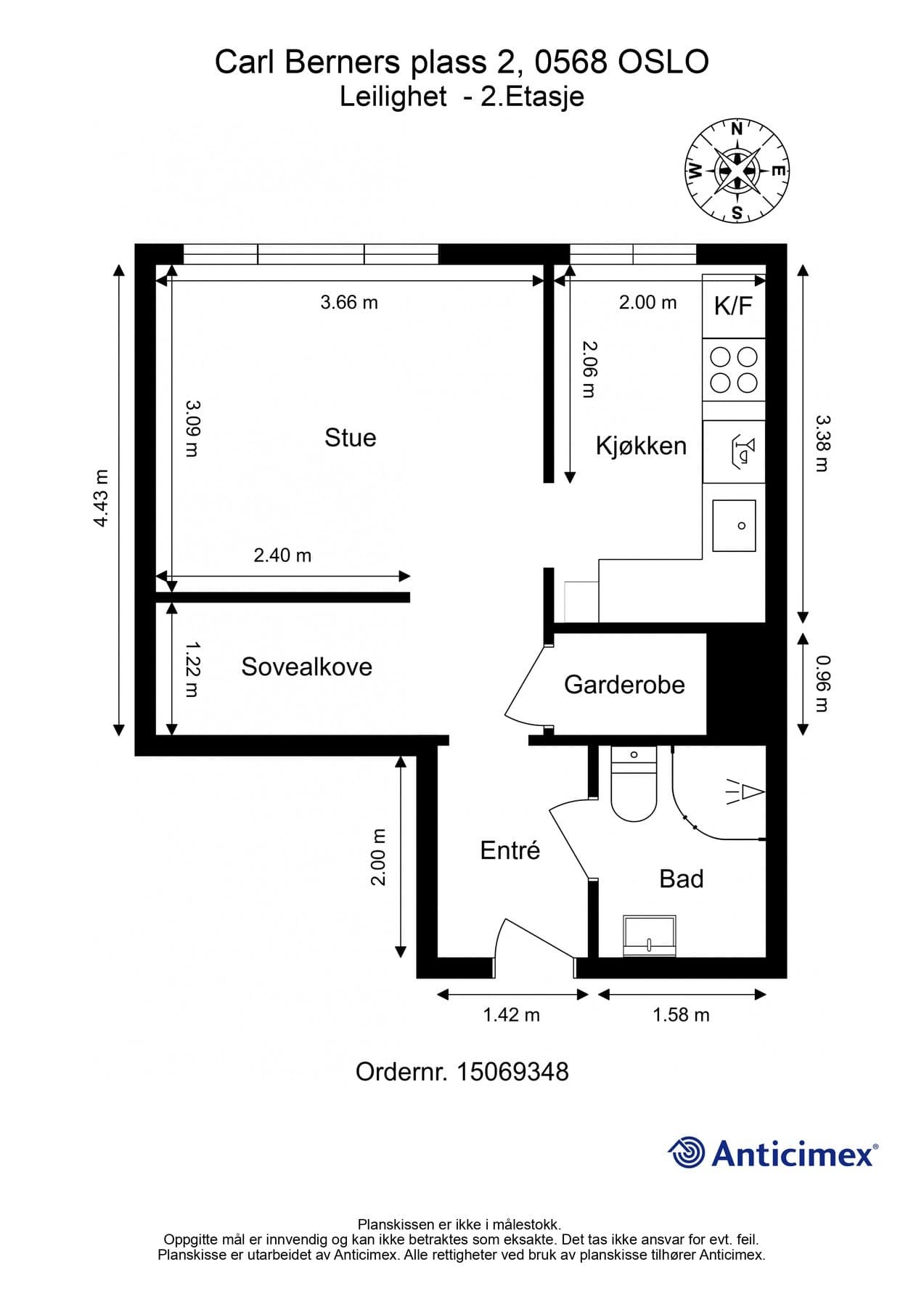
Internt bruksareal
32 m² BRA-i
Etasje
2.
Risikoer
Høydepunkter
Betaler du for mye i rente?
Oppdatert boligverdi kan gi lavere rente. Få tilbud fra opptil 3 meglere.
Meglere kan ta vederlag for verdivurdering hvis du ikke planlegger å selge.
Risikovurdering
Basert på AI-analyse av boligens salgsoppgave
1. Eldre vinduer
Vinduer er fra 1989, og det må forventes høyere varmetap sammenlignet med moderne vinduer.
🪟Byggteknisk
Spør megler
“Hva er planene for å oppgradere eller bytte ut vinduene i fremtiden?”
2. Ventilasjon på bad
Badet har kun naturlig ventilasjon, noe som kan medføre økt fuktbelastning.
🌬️Ventilasjon
Spør megler
“Er det vurdert å installere mekanisk ventilasjon for bedre luftutskifting?”
3. Eldre varmtvannsanlegg
Det vannbårne varmeanlegget er eldre, noe som kan bety redusert effektivitet og potensielt behov for reparasjoner.
🔧Vvs-anlegg
Spør megler
“Hvilke tiltak bør vurderes for å sikre at det vannbårne varmeanlegget fungerer optimalt i fremtiden?”
4. Fellesgjeld
Det er en fellesgjeld på 97 603 kr, som er over 2,6 % av salgssummen, og kan påvirke månedlige utgifter.
📊Fellesgjeld
Spør megler
“Hva er de langsiktige planene for nedbetaling av fellesgjelden?”
5. Kontrollerte elektriske anlegg
Det er ikke fremlagt el-tilsynsrapporter fra de siste fem år, noe som kan gi usikkerhet rundt tilstanden til det elektriske anlegget.
⚡Elektrisk anlegg
Spør megler
“Hvordan vil dere sikre at det elektriske anlegget er i god stand?”
6. Negativ egenkapital i sameiet
Sameiet har negativ egenkapital, noe som kan indikere økonomiske problemer, og påvirker eiernes ansvar for felleskostnader.
📉Økonomi
Spør megler
“Hvordan planlegger styret å håndtere den negative egenkapitalen?”
Vurderer du å selge boligen din?
Få gratis og uforpliktende tilbud fra opptil 3 lokale eiendomsmeglere.





