1 / 39
262 dager siden
Solgt
Kampen
Brinken 19B, 0654 Oslo
Totalpris
5 328 675 kr
102 297 kr per m²
Prisantydning
5 200 000 kr
Felleskost/mnd
5 125 kr
Internt bruksareal
52 m² BRA-i
Soverom
2
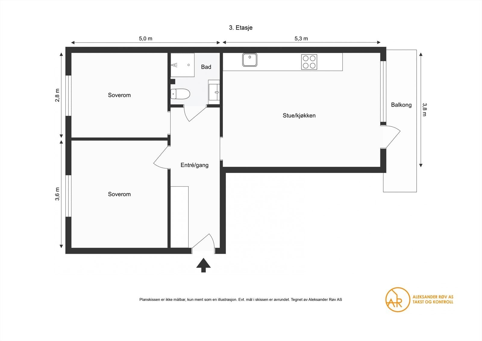
Etasje
3.
Risikoer
Høydepunkter
Betaler du for mye i rente?
Oppdatert boligverdi kan gi lavere rente. Få tilbud fra opptil 3 meglere.
Meglere kan ta vederlag for verdivurdering hvis du ikke planlegger å selge.
Risikovurdering
Basert på AI-analyse av boligens salgsoppgave
1. Ventilasjon
«Ved å flytte kjøkken uten å endre ventilasjonen forandres prinsippene for oppdriftsventilasjon...» Dette kan gi redusert luftsirkulasjon i boligen.
💨Ventilasjon
Spør megler
“Hvordan påvirker det boligens inneklima at det nåværende ventilasjonssystemet ikke er tilpasset den nye kjøkkenløsningen?”
2. Balkongens sikkerhet
Rekkverket er lavere enn minimumskravet etter dagens byggtekniske forskrifter, noe som kan være en sikkerhetsrisiko.
⚠️Byggteknisk
Spør megler
“Hvilke tiltak er planlagt for å utbedre eller oppdatere balkongen til dagens sikkerhetskrav?”
3. Skader på badet
Det er påvist riss og sprekker i fugemasse mellom flisene i dusjsonen, samt sprekker i fliser.
🚿Våtrom
Spør megler
“Hva vil det koste å utbedre skadene på badet, og hva innebærer det i praksis?”
4. Energikarakter
Energikarakteren for boligen er F, noe som indikerer at den ikke er spesielt energieffektiv.
⚡Energikvalitet
Spør megler
“Hvilke tiltak kan vurderes for å forbedre energikvaliteten og redusere energikostnadene i leiligheten?”
5. Historikk med fukt i kjelleren
«Borettslaget har hatt fuktinnsig i et kjellerrom. Utbedret oktober 2024.»
💧Fukt
Spør megler
“Kan du gi mer informasjon om hvor utbedringene fant sted og hvilke tiltak som ble gjort?”
6. Planlagt økning av felleskostnader
Det er nevnt økning i felleskostnader begrunnet i høyere kommunale avgifter og økte renter.
📈Felleskostnader
Spør megler
“Er det planlagt ytterligere økninger i felleskostnader neste år, og hva er grunnet dette?”
Vurderer du å selge boligen din?
Få gratis og uforpliktende tilbud fra opptil 3 lokale eiendomsmeglere.





