1 / 43
383 dager siden
Solgt
Øvre Torshov
Brettevilles Gate 24, 0481 Oslo
Totalpris
7 874 641 kr
86 512 kr per m²
Prisantydning
7 800 000 kr
Felleskost/mnd
4 141 kr
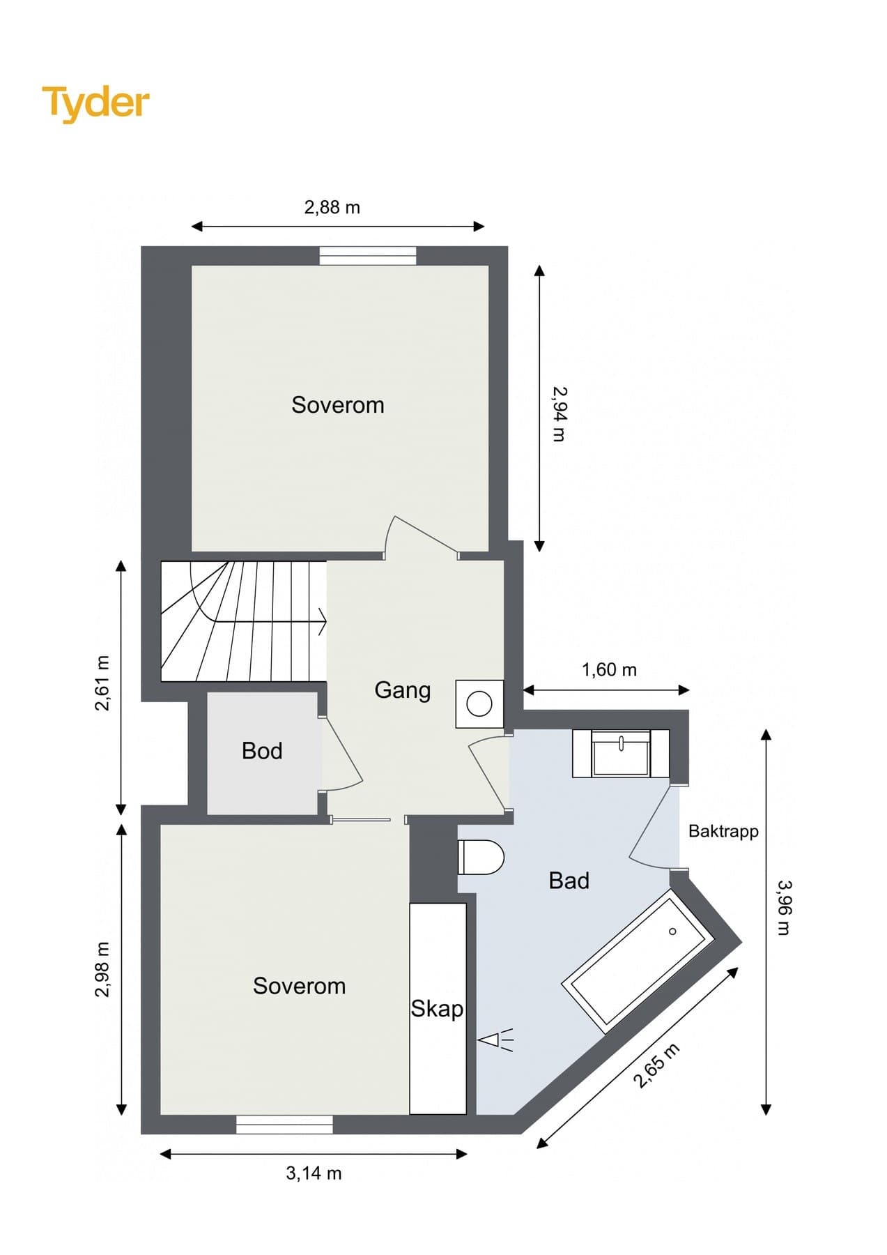
Internt bruksareal
91 m² BRA-i
Soverom
2
Etasje
1.
Risikoer
Høydepunkter
Betaler du for mye i rente?
Oppdatert boligverdi kan gi lavere rente. Få tilbud fra opptil 3 meglere.
Meglere kan ta vederlag for verdivurdering hvis du ikke planlegger å selge.
Risikovurdering
Basert på AI-analyse av boligens salgsoppgave
1. Fellesgjeld
Andel fellesgjeld utgjør kr 72 551, noe som kan påvirke den totale kostnaden ved kjøpet.
💰Felleskostnader
Spør megler
“Kan du gi mer informasjon om fremtidige endringer i felleskostnader eller fellesgjeld?”
2. Alder på bygg
Bygget er fra 1926, noe som kan innebære potensielle skjulte vedlikeholdsbehov.
🏛️Bygningsår
Spør megler
“Hvilke vedlikeholdsplaner eller oppgraderinger er det for bygningen?”
3. Skjevheter i etasjeskiller
Det er rapportert om skjevheter i etasjeskiller, noe som kan indikere behov for tiltak.
🏗️Byggteknisk
Spør megler
“Hva vil det koste å rette opp skjevhetene i etasjeskilleren?”
4. Ventilasjon
Ventilasjonen i boligen er rapportert som ikke tilfredsstillende, noe som kan påvirke inneklimaet.
🌬️Ventilasjon
Spør megler
“Hvilke tiltak kan iverksettes for å forbedre ventilasjonen?”
5. Alder på elektrisk anlegg
Det elektriske anlegget har normal slitasje og er eldre, noe som kan kreve oppgradering.
🔌Elektrisk anlegg
Spør megler
“Er det planlagt en oppgradering av det elektriske anlegget?”
6. Radoninnhold
Det er utført radonmåling med resultater på +/- 100 Bq/m3, som ligger over anbefalt tiltaksgrense for sikring.
♨️Radon
Spør megler
“Hvilke tiltak vil bli iverksatt for å redusere radoninnholdet?”
Vurderer du å selge boligen din?
Få gratis og uforpliktende tilbud fra opptil 3 lokale eiendomsmeglere.





