1 / 35
314 dager siden
Solgt
Borggata 12A, 0650 Oslo
Totalpris
7 798 179 kr
84 411 kr per m²
Prisantydning
7 500 000 kr
Felleskost/mnd
5 689 kr
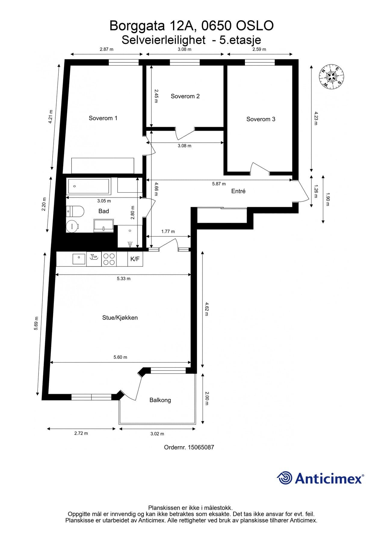
Internt bruksareal
90 m² BRA-i
Soverom
3
Etasje
5.
Risikoer
Høydepunkter
Betaler du for mye i rente?
Oppdatert boligverdi kan gi lavere rente. Få tilbud fra opptil 3 meglere.
Meglere kan ta vederlag for verdivurdering hvis du ikke planlegger å selge.
Risikovurdering
Basert på AI-analyse av boligens salgsoppgave
1. Skjevhetsmåling i etasjeskiller
Det er målt skjevheter i entré og stue/kjøkken. Forskjellen mellom høyeste og laveste punkt i stue/kjøkken er ca. 33mm. Årsaken til skjevhetene er ikke kjent.
🔍Byggteknisk
Spør megler
“Hvilke tiltak kan være nødvendig for å utbedre skjevhetsmålingen?”
2. Bomlyd under badet
Tilstandsrapporten indikerer bomlyd (tegn til hulrom) under enkelte gulvfliser på badet, noe som kan medføre at fliser løsner over tid.
🚧Byggteknisk
Spør megler
“Hva vil det koste å reparere eventuelle skader relatert til bomlyden under gulvflisene?”
3. Balkongrekkverk under forskriftskrav
Rekkverkshøyden på balkongen er under 1,2 meter, noe som avviker fra dagens byggetekniske forskrift.
⚠️Sikkerhet
Spør megler
“Hva er planene for å oppgradere balkongrekkverket for å møte forskriftskrav?”
4. Energimerking Rød E
Energimerking for leiligheten er 'Rød E', noe som indikerer at boligen kan ha høyere energikostnader.
⚡Energikostnader
Spør megler
“Hvilke tiltak kan vurderes for å forbedre energiklassifisering og redusere kostnader?”
5. Kostnader knyttet til heisoppgradering
Sameiet planlegger å skifte ut heisene, med kostnader estimert til ca. 10 millioner kr, som kan medføre økte felleskostnader.
💼Felleskostnader
Spør megler
“Hvor mye kan felleskostnadene potensielt øke i forbindelse med heisoppgradering?”
6. Sølvkre rapportert i boligen
Det er rapportert om sølvkre i boligen, selv om situasjonen har blitt bedre. Sameiet jobber med å håndtere dette.
🐜Skadedyr
Spør megler
“Hvilke tiltak er blitt iverksatt for å fjerne gjenværende sølvkre fra leiligheten?”
Vurderer du å selge boligen din?
Få gratis og uforpliktende tilbud fra opptil 3 lokale eiendomsmeglere.





