1 / 32
6 dager siden
Visning 21. apr kl 17:00
Søylegården
Borger Withs Gate 1, 0482 Oslo
Totalpris
6 429 405 kr
110 828 kr per m²
Prisantydning
6 400 000 kr
Felleskost/mnd
3 461 kr
Internt bruksareal
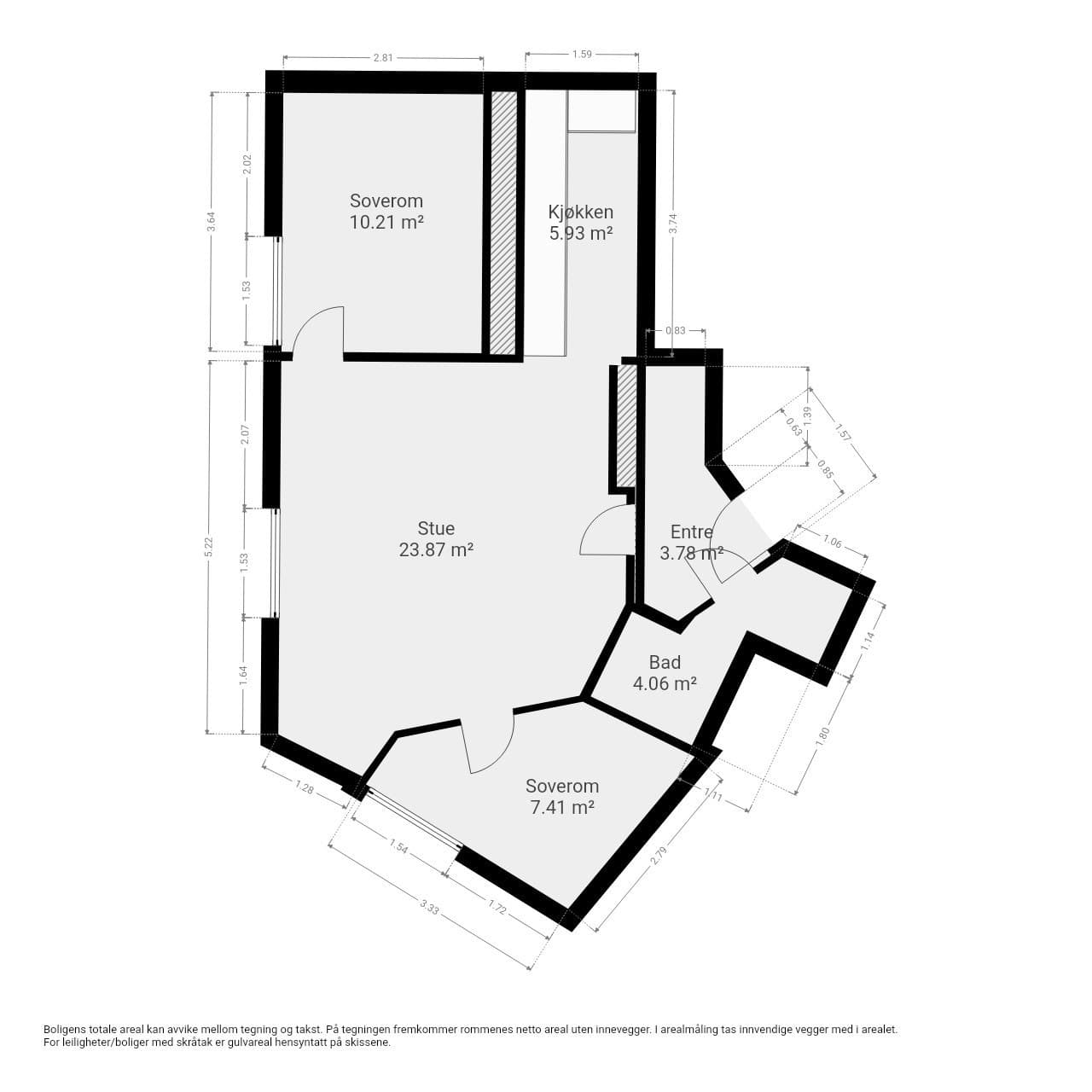
58 m² BRA-i
Soverom
2
Etasje
3.
Risikoer
Høydepunkter
Tilstandsrapport
Visning
Tirsdag 21. april
17:00 – 17:45
Klar til å legge inn bud?
Skaff finansieringsbevis og vit hvor mye du kan by.
Nom. rente 4,99%, eff. rente 5,15%. 3 mill o/25 år. Totalt 5 274 258 kr.
Risikovurdering
Basert på AI-analyse av boligens salgsoppgave
1. Skjeve gulv
Det er målt en høydeforskjell på over 30 mm gjennom hele rommet i etasjeskillet, noe som er en alvorlig avvik (TG3). Dette kan kreve oppretting dersom man skal legge nytt gulv eller gjennomføre renovering, og kan føre til praktiske utfordringer ved møblering.
⚠️Byggteknisk
Spør megler
“Hva er et realistisk kostnadsestimat for oppretting av gulv i denne leiligheten, og hvordan påvirker dette mulige oppgraderinger?”
2. Svelling i laminatgulv
Det er registrert svellinger i skjøtene mellom enkelte laminatbord, særlig på soverommet nærmest tilstøtende bad. Dette kan skyldes skjøtenes svakhet samt fukt fra planter.
💧Innvendig vedlikehold
Spør megler
“Kan du utdype omfanget og mulige årsaker til svellingen i laminatgulvet, og hva det vil koste å utbedre dette?”
3. Mangelfull ventilasjon
Badet mangler tilluftsventilering, og ingen av soverommene har egen luftemulighet slik som stuen. Dette fører til redusert luftutskifting og kan påvirke inneklima negativt.
🌬️Ventilasjon
Spør megler
“Hva er mulighetene og begrensningene for å etablere tilfredsstillende ventilasjon og tilluft i soverommene og på badet i denne leiligheten?”
4. Elektrisk tilkobling er ikke forskriftsmessig
Varmtvannsberederen i kjøkkenbenken er tilkoblet via vanlig stikkontakt og oppfyller ikke gjeldende forskrifter som krever fast tilkobling på egen kurs.
⚡Elektrisk
Spør megler
“Hvilke spesifikke tiltak må gjøres for å bringe varmtvannsberederens tilkobling i forskriftsmessig stand, og hva vil dette omtrent koste?”
5. Kullfilterventilator uten mekanisk avtrekk
Kjøkkenet har kun kullfilterventilator og mangler andre mekaniske avtrekksløsninger. Dette medfører begrenset luftutskifting spesielt ved intensiv matlaging, som kan føre til lukt og fettavsetninger.
🍳Ventilasjon
Spør megler
“Er det styrets eller borettslagets vedtekter som eventuelt begrenser installasjon av mekanisk avtrekk, og hvordan kan man eventuelt løse dette?”
Vurderer du å selge boligen din?
Få gratis og uforpliktende tilbud fra opptil 3 lokale eiendomsmeglere.





