1 / 61
306 dager siden
Solgt
Stovner / Vestli
Bånkallstubben 1B, 0964 Oslo
Totalpris
7 688 850 kr
32 751 kr per m²
Prisantydning
7 500 000 kr
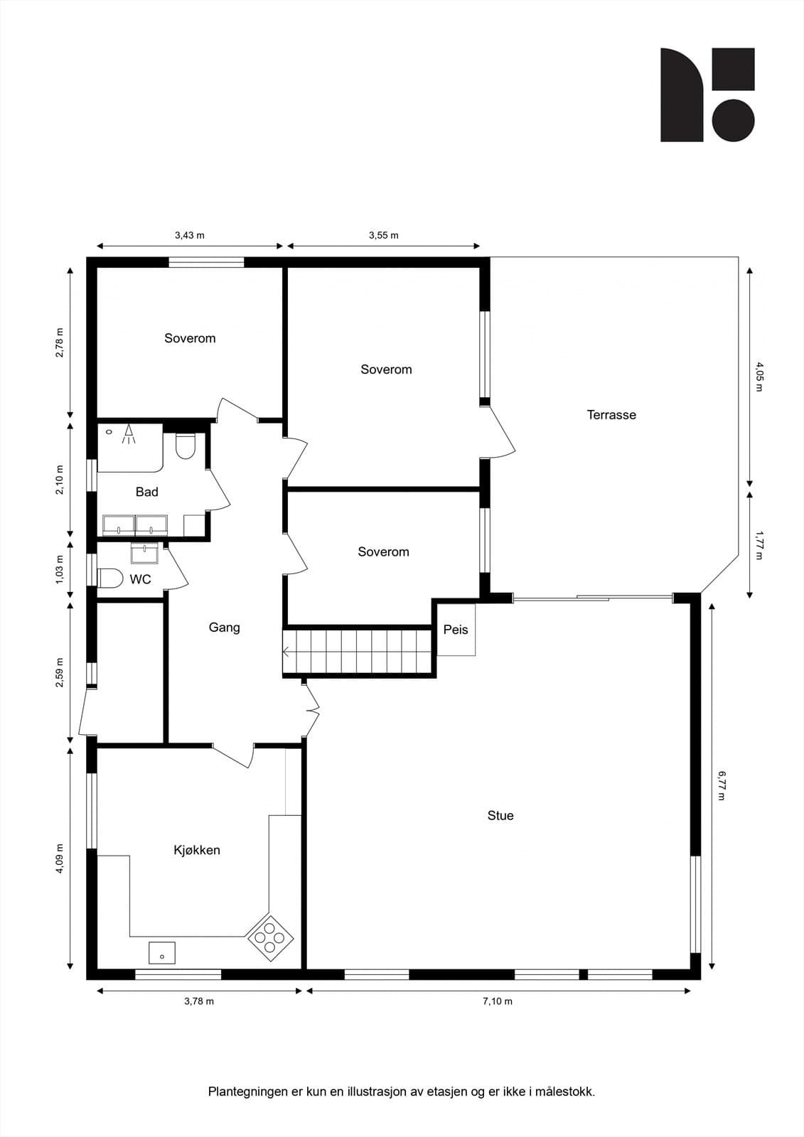
Internt bruksareal
229 m² BRA-i
Soverom
4
Etasje
2.
Risikoer
Høydepunkter
Betaler du for mye i rente?
Oppdatert boligverdi kan gi lavere rente. Få tilbud fra opptil 3 meglere.
Meglere kan ta vederlag for verdivurdering hvis du ikke planlegger å selge.
Risikovurdering
Basert på AI-analyse av boligens salgsoppgave
1. Vinduer i dårlig stand
Det er rapportert at 'vindu i stue er i dårlig stand, bør skiftes' og 'vindu i kjeller har sprekk, bør skiftes'.
🔍Vinduer
Spør megler
“Hvilke kostnader kan forventes ved utskifting av de skadede vinduene?”
2. Fuktskader i kjeller
Det rapporteres om 'registrert fuktskjolder/ fuktskader på overflater' i kjelleren, samt 'høyt fuktnivå i vegg ved hulltaking og fuktmåling'.
💧Fukt
Spør megler
“Hvilke tiltak bør vurderes for å utbedre fuktskader i kjeller?”
3. Drenering mangler i garasje
Det er notert at 'garasje har ingen drenering, kommer vann ved regn og snøsmelting'.
🌧️Drenering
Spør megler
“Hva vil det koste å installere skikkelig drenering rundt garasjen?”
4. Mangler ventilasjon på bad
Det er rapportert at 'rommet har ingen ventilasjon' på badet i kjeller, noe som kan føre til problemer med inneklima.
🌬️Ventilasjon
Spør megler
“Hvilket tiltak er nødvendig for å etablere tilstrekkelig ventilasjon på badet i kjelleren?”
5. El-anlegg i alderdom
Det påpekes at 'el-anlegget kan ha feil og mangler som en forenklet undersøkelse ikke vil avdekke'.
⚡Elektrisk anlegg
Spør megler
“Hvilke tiltak anbefales for å få en grundig vurdering av el-anlegget?”
6. Ikke godkjent hybel
Det er angitt at 'ikke godkjent hybel' finnes i underetasjen, noe som kan skape problemer ved utleie.
📜Utleie
Spør megler
“Hva innebærer det at hybelen ikke er godkjent og hva må gjøres for å få godkjennelse?”
Vurderer du å selge boligen din?
Få gratis og uforpliktende tilbud fra opptil 3 lokale eiendomsmeglere.





