1 / 22
2 dager siden
Visning 21. apr kl 16:30
Amtmann Meinichs Gate 20D, 0482 Oslo
Totalpris
4 435 846 kr
86 718 kr per m²
Prisantydning
4 250 000 kr
Felleskost/mnd
4 748 kr
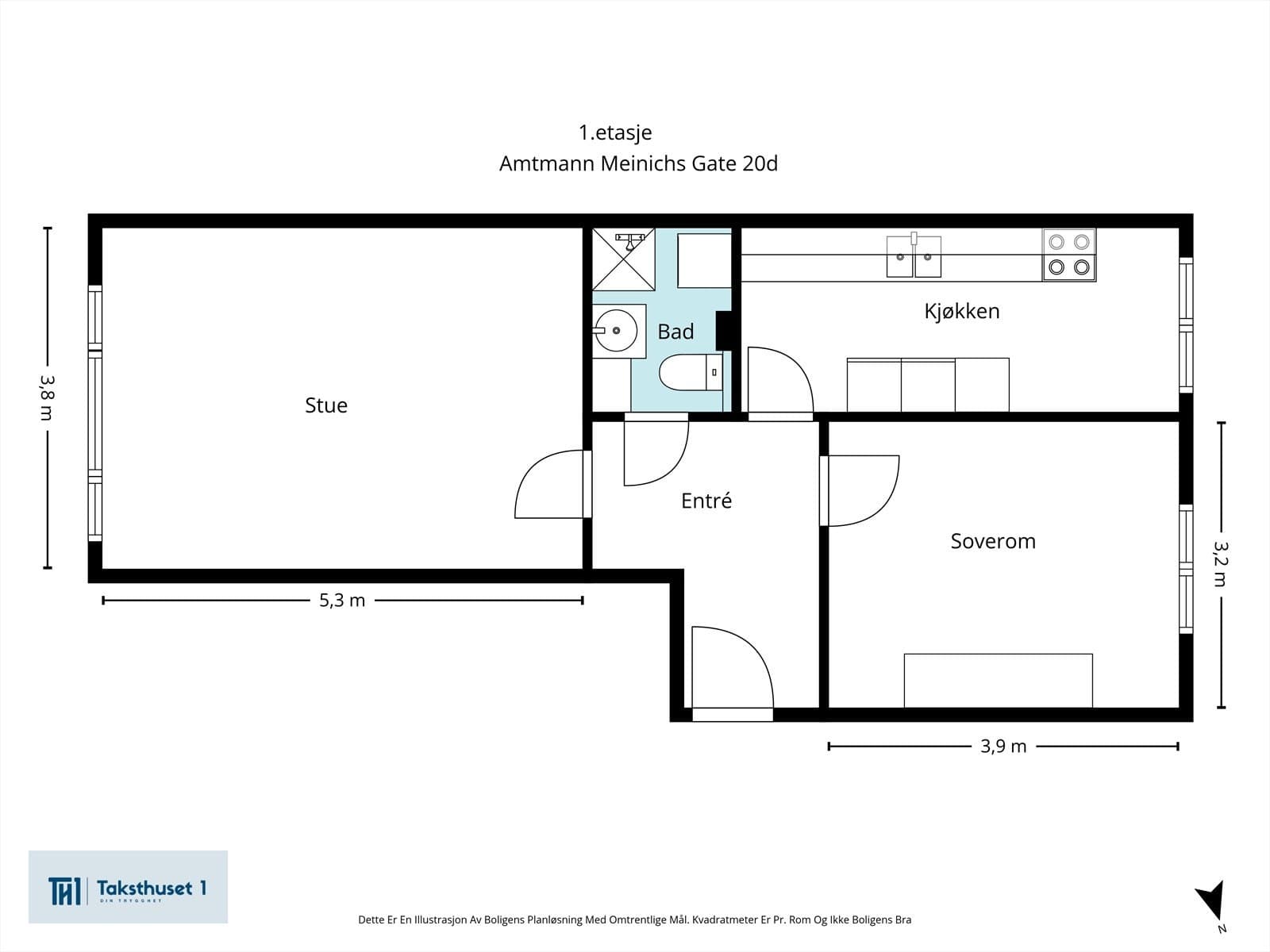
Internt bruksareal
51 m² BRA-i
Soverom
1
Etasje
1.
Risikoer
Høydepunkter
Tilstandsrapport
Visning
Tirsdag 21. april
16:30 – 17:30
Klar til å legge inn bud?
Skaff finansieringsbevis og vit hvor mye du kan by.
Nom. rente 4,99%, eff. rente 5,15%. 3 mill o/25 år. Totalt 5 274 258 kr.
Risikovurdering
Basert på AI-analyse av boligens salgsoppgave
1. Eldre vinduer med varmetap
Vinduer fra 2006 har passert 20 års alder og isolasjonsevnen kan være svekket, noe som kan føre til varmetap, dårlig inneklima og høyere strømregning. Det anbefales faglig vurdering for eventuelt utskiftning.
Kilde:
🏚️Byggteknisk
Spør megler
“Hva vil kostnadene kunne bli for å bytte ut vinduene med mer energieffektive modeller?”
2. Eldre ytterdør med slitasje
Ytterdøren er brann- og lydklassifisert, men er over 20 år gammel og har passert forventet levetid for enkelte komponenter. Det kan påregnes økt vedlikeholdsbehov og eventuelt utskiftning over tid.
Kilde:
🚪Byggteknisk
Spør megler
“Kan du gi en oversikt over tilstanden på ytterdøren og hva det vil koste å bytte den?”
3. Knirk i gulv
Det er gjennomgående knirk i gulvene i alle rom, noe som kan være sjenerende for beboere, men ikke utgjør risiko for skader på konstruksjonen. Tiltak som etterstramming anbefales.
🔨Innvendig
Spør megler
“Har det vært vurdert utbedring av knirk i gulv, og hva kan dette innebære av kostnader?”
4. Våtromsmembran har passert levetid
Membranløsningen på badet har passert mer enn halvparten av forventet brukstid, noe som øker risiko for fuktskader og lekkasjer. Jevnlig overvåkning og planlegging for fornyelse anbefales.
🚿Våtrom
Spør megler
“Hvordan anbefales det å følge opp membranen på badet, og hva kan ny membran koste?”
5. Mangelfull ventilasjon på bad
Badet har kun naturlig ventilasjon, noe som kan føre til fuktproblemer og dårlig luftkvalitet over tid. Elektrisk avtrekksvifte anbefales, men må godkjennes av borettslag/sameie.
Kilde:
💨Våtrom
Spør megler
“Er det mulig å installere mekanisk avtrekk på badet, og eventuelt hva vil en slik oppgradering koste?”
6. Tekniske installasjoner i aldring
Vannledninger, avløpsrør, varmesentral, varmtvannstank og anlegg for vannbåren varme har alle passert mer enn halvparten av forventet brukstid. Det kan være risiko for lekkasjer og funksjonssvikt, men anleggene fungerer i dag. Regelmessig kontroll og planlegging for utskiftning bør vurderes.
⚙️Tekniske installasjoner
Spør megler
“Hva er forventet levetid og kostnader ved utskiftning av de tekniske installasjonene i leiligheten?”
Vurderer du å selge boligen din?
Få gratis og uforpliktende tilbud fra opptil 3 lokale eiendomsmeglere.





