1 / 52
378 dager siden
Solgt
Ammerud
Ammerudhellinga 56, 0959 Oslo
Totalpris
3 892 562 kr
52 473 kr per m²
Prisantydning
3 650 000 kr
Felleskost/mnd
6 780 kr
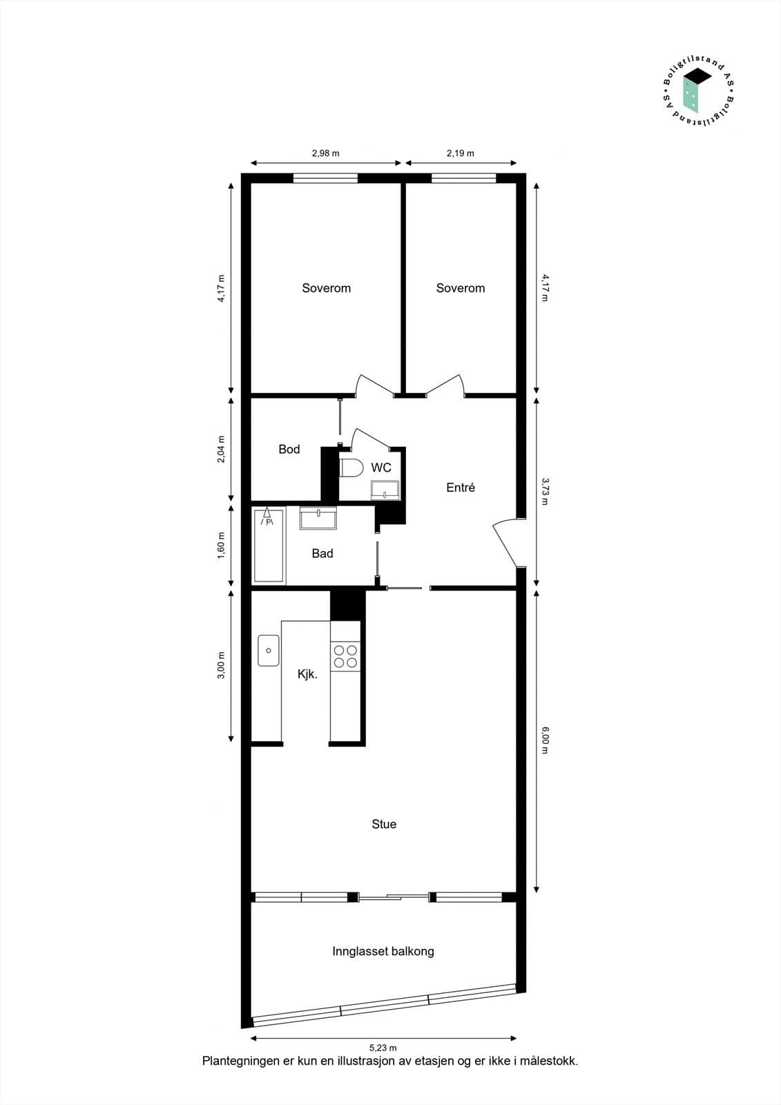
Internt bruksareal
74 m² BRA-i
Soverom
2
Etasje
3.
Risikoer
Høydepunkter
Betaler du for mye i rente?
Oppdatert boligverdi kan gi lavere rente. Få tilbud fra opptil 3 meglere.
Meglere kan ta vederlag for verdivurdering hvis du ikke planlegger å selge.
Risikovurdering
Basert på AI-analyse av boligens salgsoppgave
1. Eldre vinduer
Det er rapportert at "enkelt vinduer er vanskelig å åpne/lukke" og "noen glassruter er punktert eller sprukne". Dette kan medføre ekstra kostnader for utskifting.
🔧Byggteknisk
Spør megler
“Hva vil det koste å skifte ut vinduene som er punktert eller sprukne?”
2. Svertesopp på bad
Det er påvist svertesopp i silikonfuger på badet, og det anbefales at "fuger må rengjøres/utskiftes".
🚿Våtrom
Spør megler
“Hva innebærer det å utbedre overflatene på badet, og hva vil kostnadene være?”
3. Slitasje på kjøkkeninnredning
Rapporten nevner at det er "skader på overflater/kjøkkeninnredning utover normal slitasjegrad", noe som indikerer at oppussing kan være nødvendig.
🛠️Innredning
Spør megler
“Når må det forventes at kjøkkeninnredningen må oppgraderes eller repareres?”
4. Mangelfull ventilasjon
Det er "påvist mangelfull ventilasjon på ett eller flere rom i boligen". Hvis dette ikke adresseres, kan det føre til fuktproblemer.
💨Ventilasjon
Spør megler
“Hvordan kan vi forbedre ventilasjonen, og hva vil det koste?”
5. Eldre elektrisk anlegg
Tilstandsrapporten anbefaler en "utvidet el-kontroll av det elektriske anlegget" på grunn av alder og manglende samsvarserklæring.
⚡Elektrisk
Spør megler
“Hvilke tiltak må tas for å oppdatere det elektriske anlegget?”
6. Tett forhold til naboer
Borettslaget har vært i kontakt med kommunen angående leietagere, noe som kan indikere potensielle problemer i langsiktig beboersammensetning.
🏢Borettslag
Spør megler
“Hvilke tiltak planlegges av borettslaget for å håndtere leietagere fra kommunen?”
Vurderer du å selge boligen din?
Få gratis og uforpliktende tilbud fra opptil 3 lokale eiendomsmeglere.





