1 / 31
279 dager siden
Solgt
Amalie Skrams Vei 46, 5036 Bergen
Totalpris
3 483 388 kr
69 284 kr per m²
Prisantydning
3 190 000 kr
Felleskost/mnd
5 460 kr
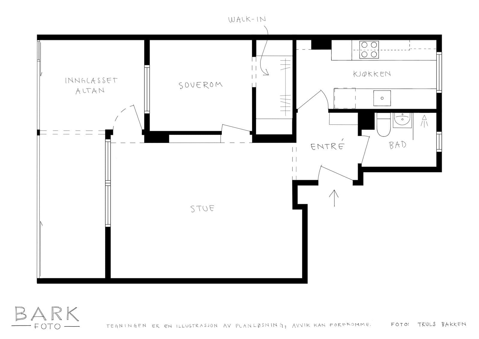
Internt bruksareal
50 m² BRA-i
Soverom
1
Etasje
3.
Risikoer
Høydepunkter
Betaler du for mye i rente?
Oppdatert boligverdi kan gi lavere rente. Få tilbud fra opptil 3 meglere.
Meglere kan ta vederlag for verdivurdering hvis du ikke planlegger å selge.
Risikovurdering
Basert på AI-analyse av boligens salgsoppgave
1. Eldre vinduer
Det er rapportert om "eldre vinduer med noe slitasje og redusert forventet levetid", noe som kan indikere at de snart må skiftes ut.
🔨Byggteknisk
Spør megler
“Hva er anslått kostnad for å bytte vinduene, og når bør dette uansett gjøres?”
2. Bad med mangler
Badet har "vindu/dør med ikke fuktbestandige materialer i våtsonen", noe som avviker fra teknisk forskrift og kan medføre skader over tid.
🚿Våtrom
Spør megler
“Hvilke tiltak vil være nødvendige for å fuktbeskytte materialer i badet?”
3. Avløpsrør nærmer seg livslutt
Innvendige avløpsrør er av støpejern, og det er rapportert "mer enn halvparten av forventet brukstid er passert", noe som kan føre til plutselige skader.
🛁Vvs
Spør megler
“Er det planer eller anbefalinger for utskifting av avløpsrørene, og hva vil kostnaden være?”
4. Ventilasjonsmangel
Rommet har "kun naturlig ventilasjon", noe som kan kreve utbedringer for å sikre god luftkvalitet.
🌬️Ventilasjon
Spør megler
“Hva slags ventilasjonsløsning anbefales og hva er kostnadsoverslaget for dette?”
5. Potensiell støy fra vei
Det kan være forventet støy fra veitransport, som er nevnt i reguleringsplaner som påvirker eiendommen.
🔊Støy
Spør megler
“Hvilke tiltak er det gjort for å redusere støy, og er det mulig å få mer informasjon om støysonen?”
6. Usikkerhet rundt brannteknisk vurdering
Branntekniske forhold er ikke grundig kontrollert og "kan ha feil og mangler" ifølge rapporten.
🔥Sikkerhet
Spør megler
“Hvilke anbefalinger finnes for å forbedre de branntekniske forholdene og har det vært arbeid gjort på dette området?”
Vurderer du å selge boligen din?
Få gratis og uforpliktende tilbud fra opptil 3 lokale eiendomsmeglere.





