1 / 55
409 dager siden
Solgt
Bo Godt I En Unik Fabrikkleilighet
Alnagata 11, 0192 Oslo
Totalpris
7 849 512 kr
78 482 kr per m²
Prisantydning
7 650 000 kr
Felleskost/mnd
10 680 kr
Internt bruksareal
100 m² BRA-i
Soverom
3
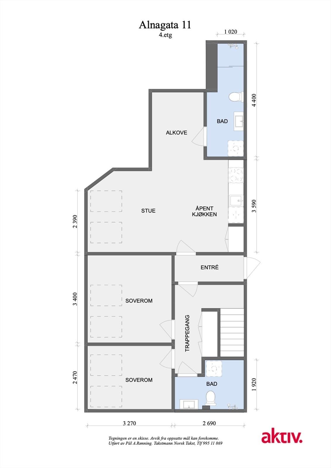
Etasje
4.
Risikoer
Høydepunkter
Betaler du for mye i rente?
Oppdatert boligverdi kan gi lavere rente. Få tilbud fra opptil 3 meglere.
Meglere kan ta vederlag for verdivurdering hvis du ikke planlegger å selge.
Risikovurdering
Basert på AI-analyse av boligens salgsoppgave
1. Høye felleskostnader
Felleskostnader per måned er 10 680 kr, noe som kan være en kostnad å vurdere i totalbudsjettet.
💰Felleskostnader
Spør megler
“Hva dekker felleskostnadene?”
2. Rehabilitering av bad anbefalt
Tilstandsrapporten anbefaler rehabilitering av bad, da det er indikasjoner på fuktutslag.
"Det anbefales å utbedre vesentlig motfall til gulvsluk i området innenfor baderomsdør".
🚿Våtrom
Spør megler
“Hva vil det koste å rehabilitere badet?”
3. Skjevhet i gulv
Det er registrert skjevhet i gulv opp til 1,2 cm i enkelte rom i leiligheten. Det er oppgitt at "det ikke er registrert forhold som tyder på svekkelser" men dette kan fremdeles påvirke romfølelsen.
⚖️Byggteknisk
Spør megler
“Hvilke tiltak anbefales for å håndtere skjevheten?”
4. Manglende kontroll av elektrisk anlegg
Det er ikke foretatt kontroll av det elektriske anlegget de siste 5 år, og det er usikkerhet ved manglende samsvarserklæring.
"TG-2 er satt med tanke på at det ikke er foretatt kontroll av det elektriske anlegget i leiligheten de siste 5 år".
⚡Elektrisk
Spør megler
“Når var sist gang det ble gjennomført en grundig kontroll av det elektriske anlegget?”
5. Alder på varmtvannsbereder
Varmtvannsberederen antas å være fra 2006, og bør byttes på sikt.
"TG-2 er satt med tanke på alder på varmtvannsbereder i henhold til levetidsbetraktning".
🔧Varmtvann
Spør megler
“Hva vil kostnaden for utskifting av varmtvannsbereder være?”
Vurderer du å selge boligen din?
Få gratis og uforpliktende tilbud fra opptil 3 lokale eiendomsmeglere.





